
在西方,神圣空间是形而上的表现;然而,我们深信神圣空间与自然存在着某种联系,而这与本土山水有着紧密的契合表达.

“你不能简单地把新的东西放入一个场地,你要吸纳你置身此地所看到的,这个空间上的存在,然后用现代思维的知识来解释你所看到的。”王皓先生的这种理念在他的设计中不断显现出来,因为他正是对自然的关注和他对空间内部和外部空间之间的关系以及重视。

进入空间大堂,映入眼帘的是叠级式的顶部竹排构造,自然的材料与空间的融合,光线的倒影;茶舍场地位于整体建筑的3F,内部通过大面积的水元素显现出来,当人走过一条舒缓的过道,才能第一次看到水面,周边的茶室也是被围绕在其中。
整体户型框架是一个立方体形式,临着一个大水面,从这里漫步而走,则是一间茶艺展示;所有品茶体验都是由BOX组成,高低错落,生动自然;通过一个小立方体与其入口的汇合,且每个体验茶间都不一样,光线变化与自然形态都尽收眼底,让体验者在环境中悠然自得。








茶室是一个光的盒子,衬托着光影使人冥思禅意,整个空间中充溢着变化,使人感受到心灵的素净。

人们可以直接与自然接触,听到树叶的沙沙声、水波的声响和风吹过的声音。在与大自然的融合中,人们面对着自我。空间中的景致随着时间的转逝而无常变幻且生动有趣。

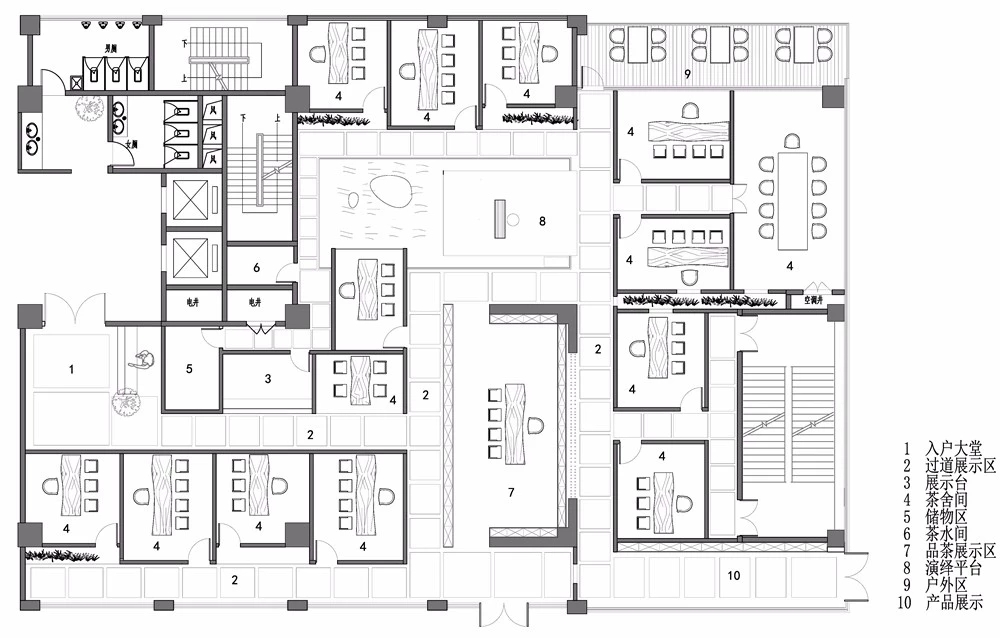
▼平面图

故事还在继续 ...
To Be Continue
全部评论