装修案例
灵感美图
找设计
找工长
看工地
记住密码
我已阅读并同意注册协议
发直播
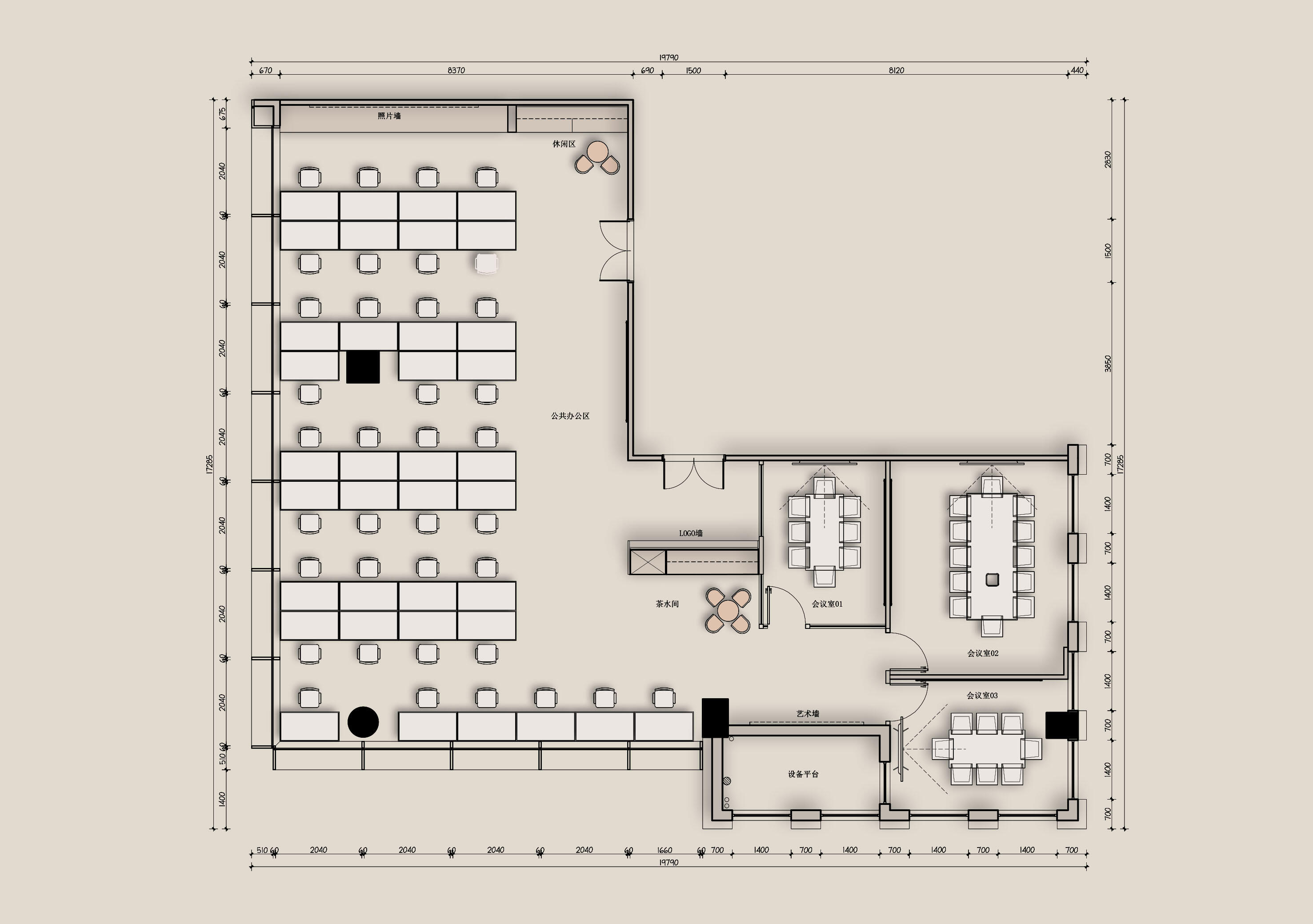
员工办公区,设计巧思注入进菱形和弧形的“变异”之中,让办公状态自由而相对独立,打破办公沟通屏障之后,办公效率有效提升。高层办公区的空间排列、道道智能化门禁系统传递出层层递进的秩序感,董事长办公室以高级灰为调性,线条在极简设计中造作,品质主材与隐射灯带的绝妙搭配透露出空间的豪奢内涵,空间更显沉稳大气。
办公空间设计
长运物流办公空间
办公室实景图
一日一平面
块状背景墙
...
线条与灯光