当前位置:首页 > 设计圈
  • Jason / 设计师

    2025-03-19 21:54


    #办公智造#

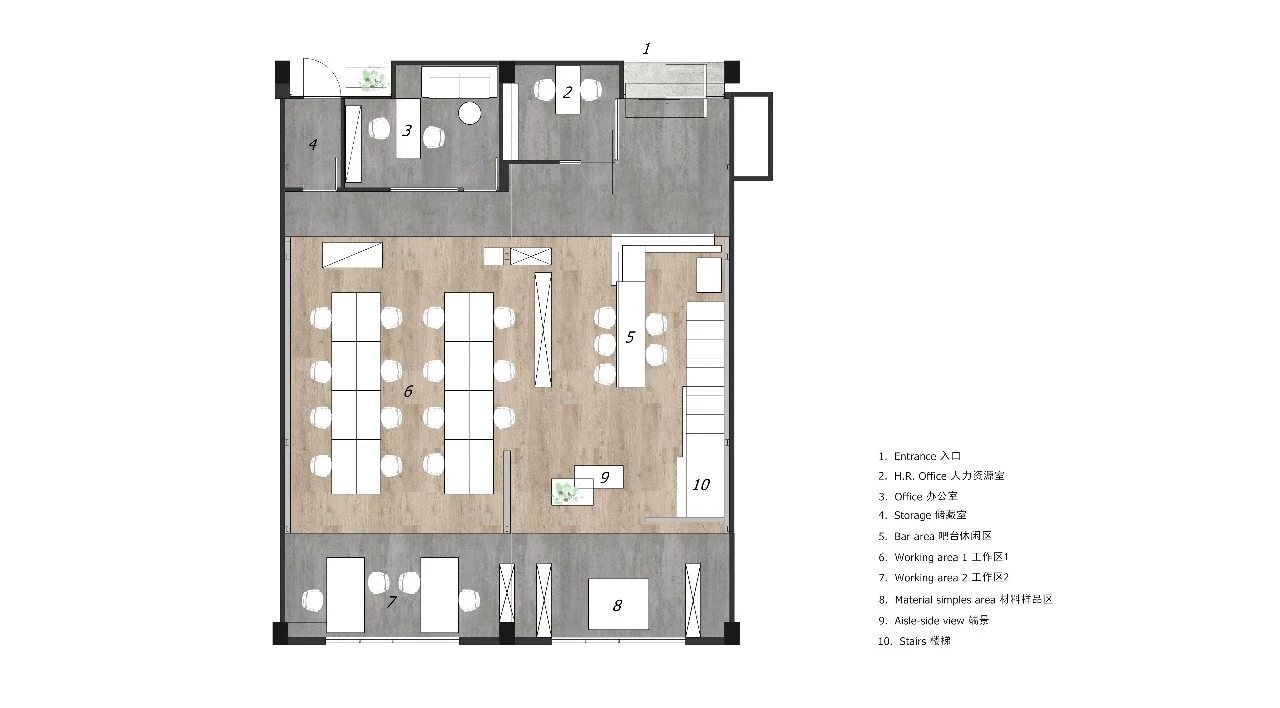
    办公区一层是主要办公空间。工作区域挑高,天花不设光源,全部采用间接光源和桌面工作灯照明,意在使空间更为开阔,同时避免过多射灯带来的杂乱感观。柔和的光线营造了一个轻松愉悦的办公环境,可以毫无拘束,实现更多想法的交流,最终选择一个最优的答案交付给公众。        

  • Jason / 设计师

    2025-03-19 21:54


    #办公智造#

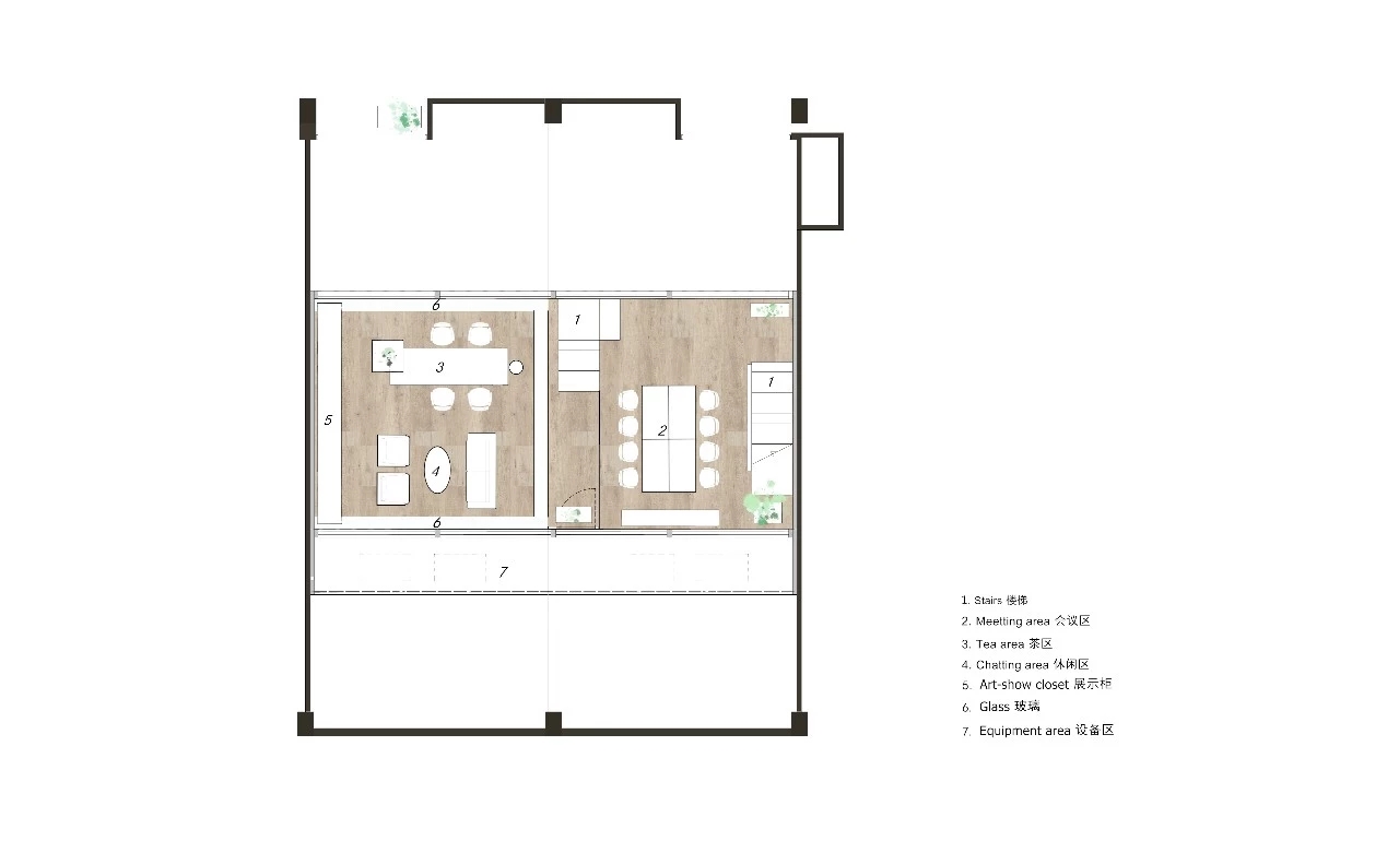
    二层为会议区和会客区。我们把二层通过空间安排对使用效率较低的会议室,提高空间利用率。会客室则位于最里,通过台阶越过原有的三角结构梁,在这里进行更多私密性的交流。会客区除了会客功能,也是进行团队学习、分享、交流、共同成长的空间。        

  • 丽旻 / 设计师

    2025-03-19 21:27


    #办公智造#

    工作室工作台        

  • 小麦庆 / 设计师

    2025-03-19 21:21


    #标准施工#

    植物墙        

  • 丽旻 / 设计师

    2025-03-19 21:21


    #办公智造#

    工作室实景(1)        

  • 丽旻 / 设计师

    2025-03-19 21:20


    #办公智造#

    工作室实景(2)        

  • 猪猪侠 / 设计师

    2025-03-19 21:14


    #办公智造#

    根据不同的顾客类型,企业展厅和设备维修设置在一层,方便普通客户参观、购买。办公、会客和接待设置在二层,重要客户参观后由负责人引入二层会客室接洽,提升接待品质。        

  • 猪猪侠 / 设计师

    2025-03-19 21:12


    #办公智造#

    空间的内涵决定了项目的品质高度。服装机械属于机械制造行业,根据公司产品稳定、精确、智能等特点,我们决定将办公层的空间气质定位为冷静、高效和现代。        

发直播

公开