当前位置:首页 > 设计圈
  • 刘静 / 设计师

    2025-03-17 21:19


    #办公智造#

    心有猛虎,细嗅蔷薇。        

  • 刘静 / 设计师

    2025-03-17 21:05


    #办公智造#

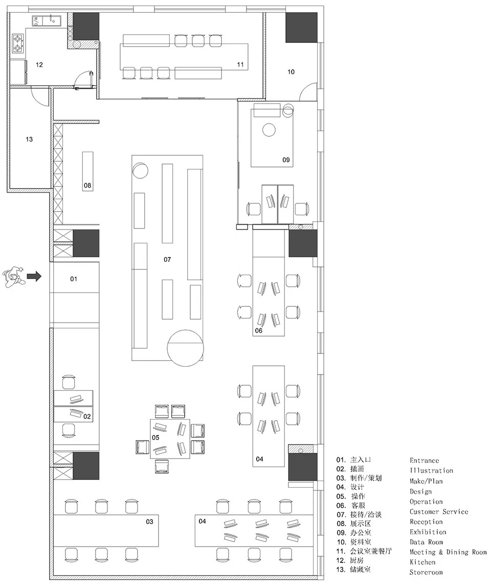
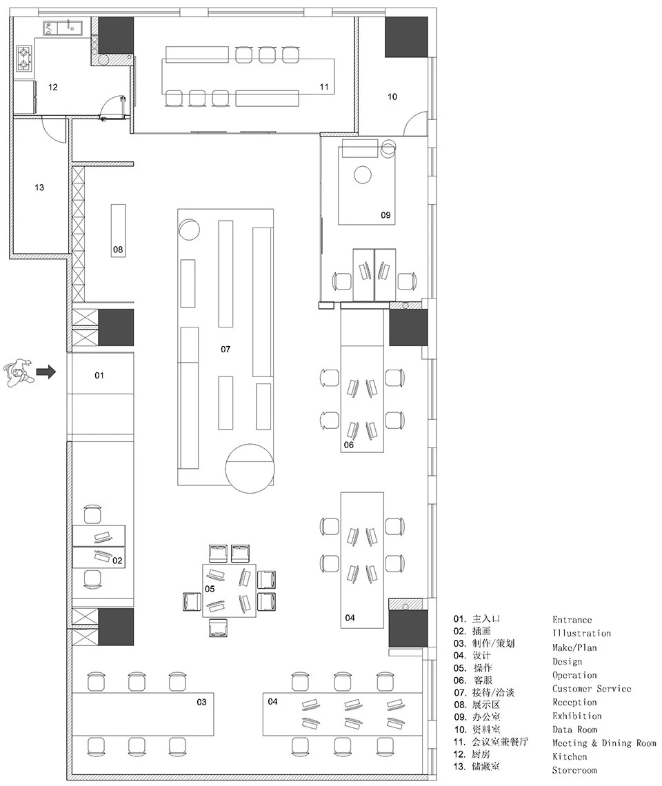
    在空间整体冷静色彩的提炼中,具有无限张力的留白处理,是设计师的克制处理。跳块的红与粉,就像是这未知空间中躁动的原点。白本身处于色界的极端,在这界线分明的空间,会议区克制的纯与空,红色沙发与粉色板块的激进表达,是完全抛开界的比例,鲜明对比。从色界极端入手,除了大胆的尝试,克制与躁动的较量,还交织与情绪相辅的空间感受,引发人的行为特征,促进情感交流、思想碰撞。        

  • 刘静 / 设计师

    2025-03-17 21:03


    #办公智造#

    通过材质的关联,天花与地面的分割。打破空间的一致性,天花保留原建筑的钢筋结构,看似孤立的元素却无心成了最躁动的存在。通过原始的粗犷与细腻的形态构成,任空间看上去是自由的表达。既对立而又协调。        

  • 刘静 / 设计师

    2025-03-17 21:02


    #办公智造#

    通过材质的关联,天花与地面的分割。打破空间的一致性,天花保留原建筑的钢筋结构,看似孤立的元素却无心成了最躁动的存在。通过原始的粗犷与细腻的形态构成,任空间看上去是自由的表达。既对立而又协调。        


  • #易筑展陈#

    展厅设计


  • #餐饮美食#

    施工图深化        

  • 敏颜 / 设计师

    2025-03-17 20:29


    #办公智造#

    绿色办公空间(1)        

  • 敏颜 / 设计师

    2025-03-17 20:28


    #办公智造#

    绿色办公空间(2)        

发直播

公开