当前位置:首页 > 设计圈

  • #办公智造#

    tomtoc:年轻人最爱的个性办公空间        

  • 刘君雅 / 设计师

    2025-03-14 20:06


    #办公智造#

    核心设计理念
    1. 空间叙事逻辑以"流动·共生"为设计理念主旨,通过解构主义手法塑造开放性与秩序感的平衡。白色基底的纯净空间象征高效运转的国际物流,木质元素与绿色植物的有机植入构建人文温度,智能科技系统则隐喻数字化供应链的精密架构。
    2. 色彩情绪管理
    主色调:雅士白(70%)+ 意大利灰木纹(15%)构成理性基调
    点缀色:苹果木色(10%)+ 苹果绿(5%)创造视觉点缀
    光照:通过5000K微冷性光,打造纯净的光环境
    3. 材质交响曲创新组合雅士白岩板/超薄树脂玻璃隔断/意大利灰木纹/商务灰地毯等多种材料,形成五感层次:
    ▸ 触觉层:温润木纹(接触舒适度提升30%)
    ▸ 视觉层:高反射岩板(空间纵深感扩展25%)
    ▸ 声学层:双层隐框玻璃隔断(噪音衰减系数≥0.8)        

  • 刘君雅 / 设计师

    2025-03-14 20:04


    #办公智造#

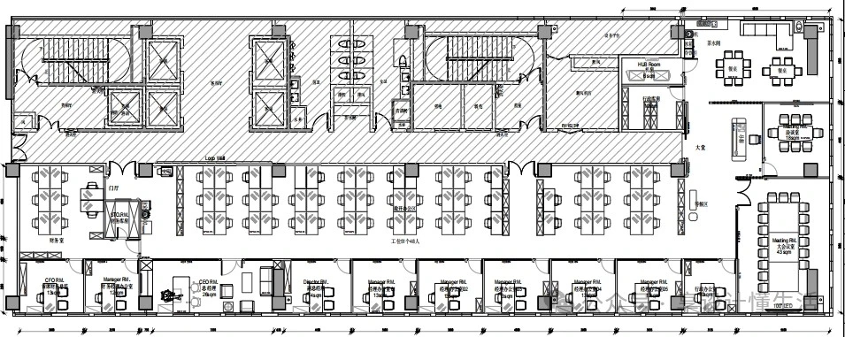
     ▎平面规划经过与业主方沟通,将主管独立办公室延外幕墙设置,靠近核心筒位置设置开敞办公区。同时,业主方有对空间风水上要求,前台接待厅没有设置在靠近电梯厅位置,而是设置在走廊尽头,有聚财的风水寓意。接待厅附近设置会议室和茶水间。在西侧也是空间最远处设置财务室,次之设置总经理办公室,然后再依次设置副总及各个部门分管领导办公室。
    ▎视觉设计
    4.5m岩板背景墙(厚度15mm)+嵌入灯带和金属条,丰富层次白色铝方通格栅吊顶+LED灯嵌平(色温5000K)雅白色人造石前台,整体简洁造型与LOGO结合。        


  • #易筑展陈#

    展厅的设计核心是“科技与人文的对话”,通过空间、光影和材质的巧妙运用,打造出一个既理性又感性的沉浸式体验空间。展厅以黑白灰为主色调,搭配金属质感和大面积玻璃元素,营造出冷峻而高级的科技感。展厅的布局非常讲究,采用了开放式设计,空间之间没有明显的隔断,而是通过光影、材质和线条的过渡自然衔接。比如,入口处的弧形走廊,用LED灯带勾勒出未来感十足的线条,仿佛在引导你进入一个全新的数字世界。而展厅中央的互动体验区,则通过沉浸式投影技术,将数据可视化,让人直观感受到科技的力量。
    材质的选择上,设计师大量运用了金属、玻璃和哑光材质,既凸显了科技感,又让空间显得干净利落。光影设计更是点睛之笔,展厅内的灯光不是简单的照明,而是通过点、线、面的组合,营造出层次分明的视觉效果。尤其是天花板的线性灯光,仿佛一条条数据流,呼应了该司作为云计算企业的属性!        

  • 丽旻 / 设计师

    2025-03-14 19:50


    #办公智造#

    Reception以简洁流畅的线条和数字化交互设计,传递企业品牌基因,访客可在此处打卡标志性的品牌墙,开启科技之旅。Showroom则如同一扇窗口,展示着企业的创新技术与行业成就。展厅门禁系统既保护产品隐私,又为合作伙伴提供深度交流的专属空间。        

  • 丽旻 / 设计师

    2025-03-14 19:49


    #办公智造#

    WeSpace被赋予了一个全新的名字——“集市”,它不仅是思想交汇的场所,更是MAGNA的“创意孵化器”。在这里,学习与讨论激荡出智慧的火花,协作与决策推动着创新的诞生,让多元的场景激发无限创造力,让每一个想法成长为改变未来的力量。        

  • 王YANG / 设计师

    2025-03-14 18:14


    #办公智造#

    律所办公空间        

  • 菲菲 / 客服

    2025-03-14 10:38


    这辈子我有五件事不会做
    第一件事,我会做的事我不做,因为我根本就会
    第二件事,我不会做的事我也不做,因为我根本就不会
    第三件事,着急的事我不做,因为着急的事容易出错
    第四件事,不着急的事我不做,因为不着急我指定不做的
    第五件事,我不想做的事我不做,我都不想做指定不做        

发直播

公开