装修案例
灵感美图
找设计
找工长
看工地
记住密码
我已阅读并同意注册协议
发直播
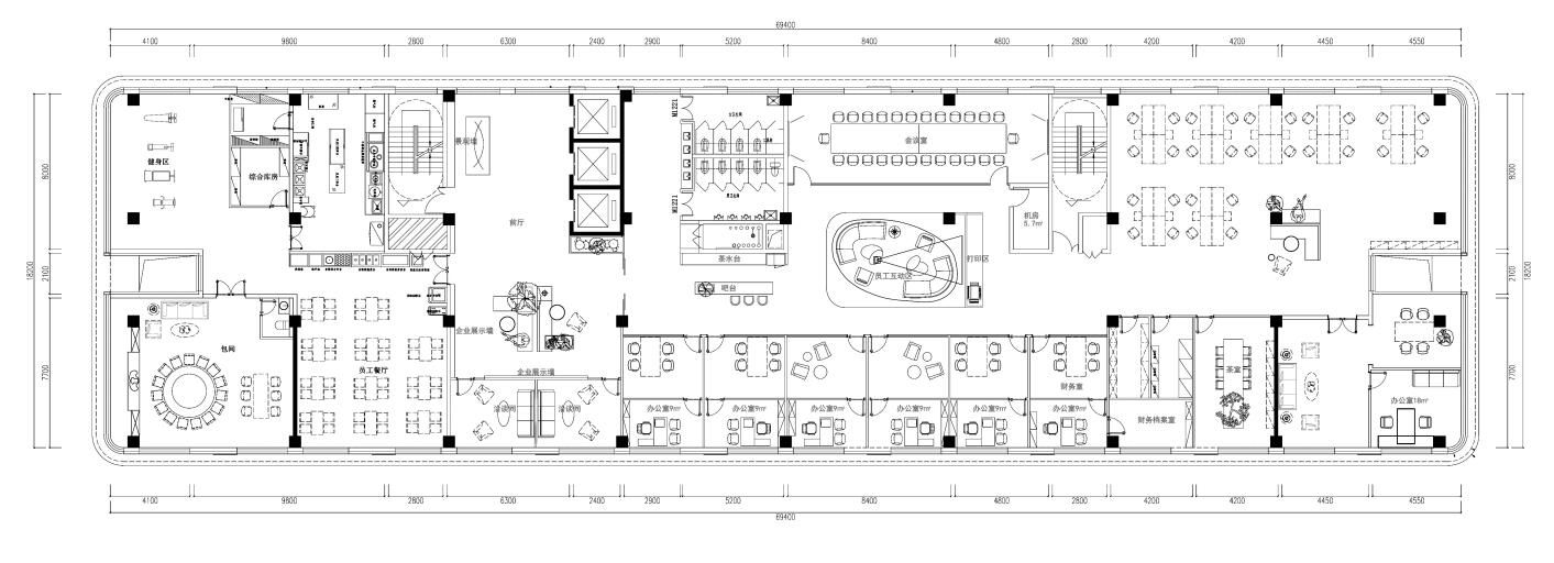
圆在办公空间设计中的运用
柜机空调尺寸
办公空间设计
明月镜片办公空间(1)
明月镜片办公空间(2)
文化墙
展厅设计
以年轻向上的绿色为主墙面设计更灵活更适合年轻人的服务中心