装修案例
灵感美图
找设计
找工长
看工地
记住密码
我已阅读并同意注册协议
发直播
办公空间设计(1)
办公空间设计(2)
德和衡律所办公空间实景图
展厅实景图
RECEPTION AREA接待区-选用天然岩板纹理,模拟山峦叠嶂的视觉效果,搭配竖向密拼工艺,强化空间纵向延伸感,隐喻“坚韧沉稳”的企业精神。通过热转印工艺还原木纹质感,与岩板形成冷暖对比,中和工业材料的冷硬感,传递自然亲和力。技术细节上,通过材料复合工艺与智能系统的深度整合,实现视觉表现与实用功能的双重突破。
篮球,羽毛球场设计图纸
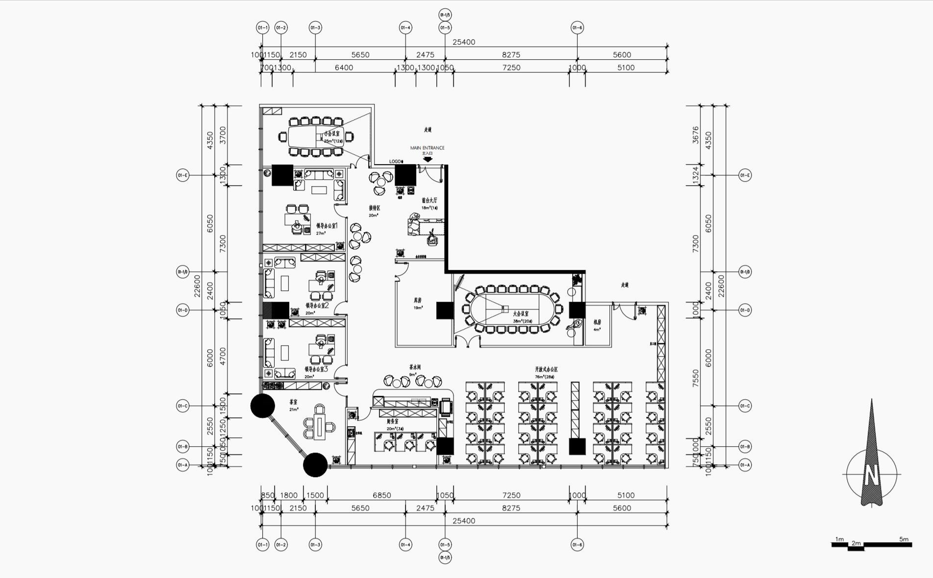
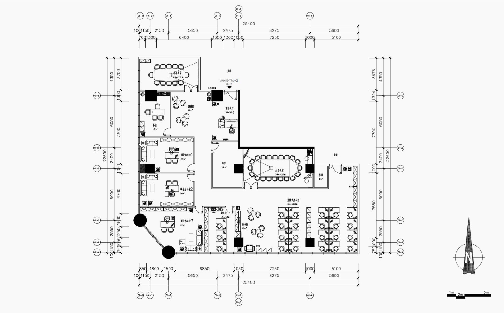
平面方案
嵌入式射灯做法