装修案例
灵感美图
找设计
找工长
看工地
记住密码
我已阅读并同意注册协议
发直播
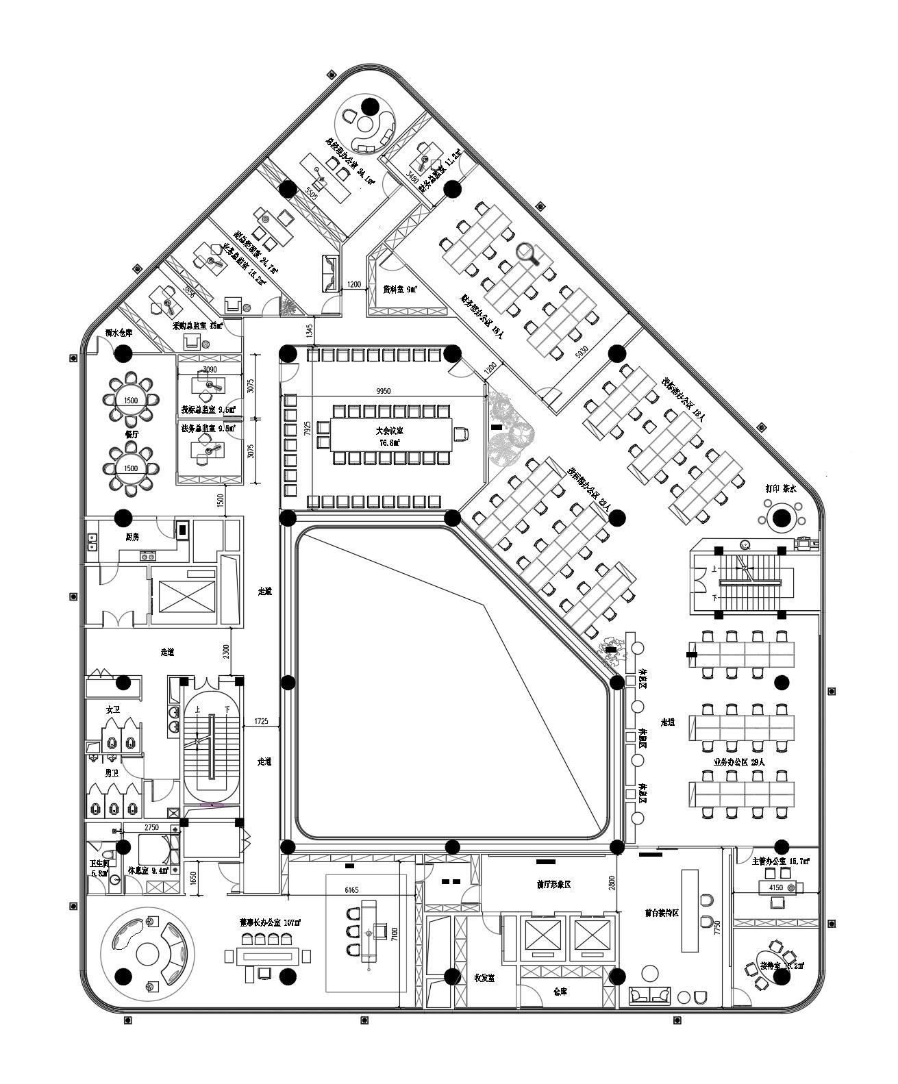
简单一套
平面图
这一设计通过原始、朴实的元素致敬过去,同时大胆、灵活的内部空间指向未来,体现了城市的活力特质。动态的纹理、灯光和图案混合,创造出一个多功能、引人入胜的空间,能够适应任何品牌、氛围或功能。设计将天然木材和裸露砖墙等材料与大胆的灯光效果相结合,确保环境视觉丰富,并适应现代城市工作空间的需求。
...
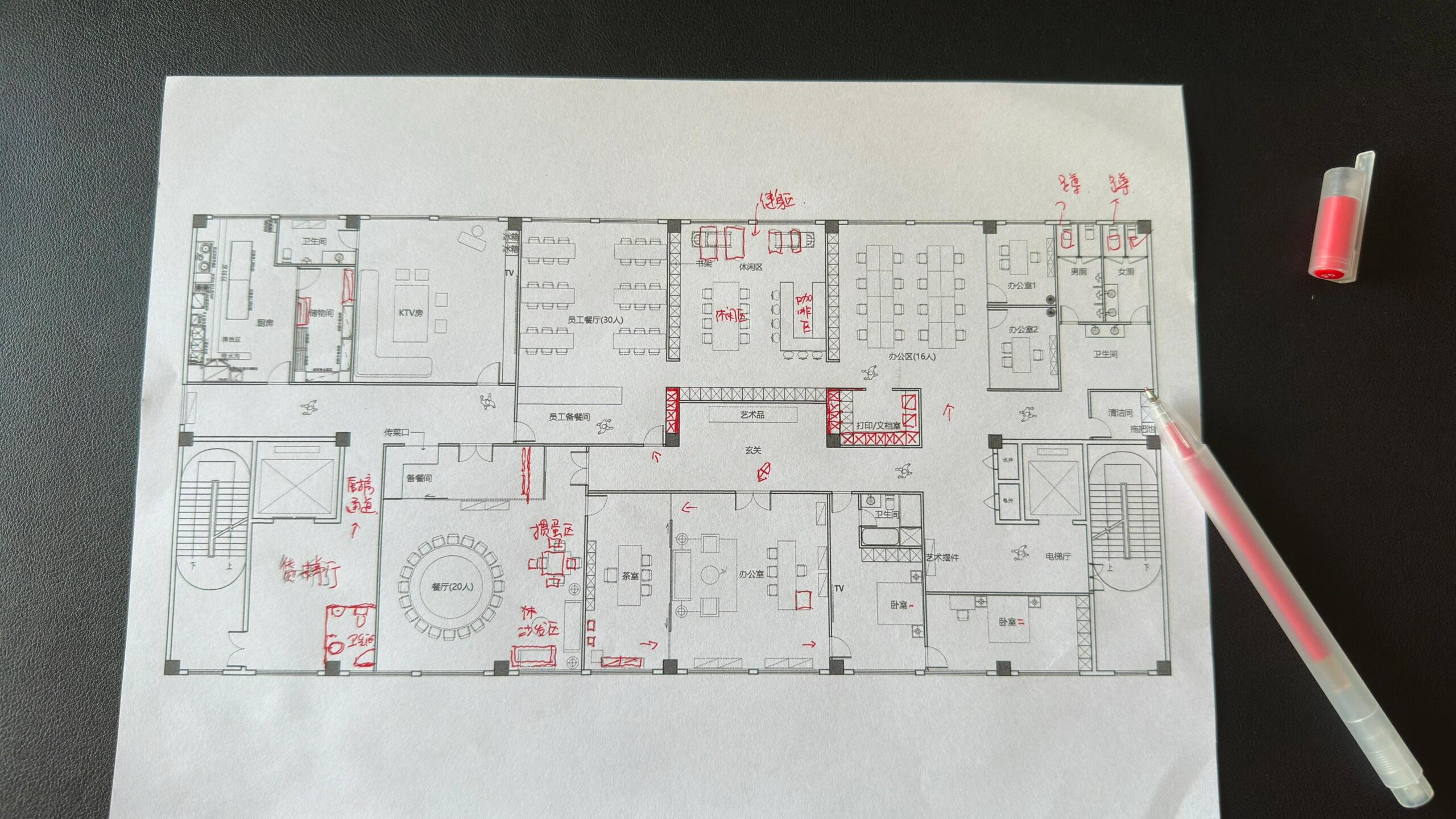
广告公司办公室
平面布置图
沉稳大气,并融入点缀色,为空间注入活力,提升办公空间舒适度。
展厅实景图