当前位置:首页 > 设计圈
  • 椿楸 / 设计师

    2025-02-13 20:26


    #办公智造#

    工作空间的设计并不仅仅是追求视觉效果,更是为了提升员工的舒适度和工作效率。为此,设计师特别考虑了员工在办公时的使用习惯和需求。头脑风暴热桌被放置在最佳位置,享有最佳的视野和光照,鼓励团队成员进行创新思维和讨论。而储物柜与开放式会议空间则巧妙地布局在员工的通勤路径上,方便日常物品存放并提高工作流程的便捷性。为了促进协作,设计还将经常合作的部门安排在彼此较近的位置,使得团队成员可以随时互动和沟通,提高整体工作效率。
    YOONCOMS的工作空间设计不仅满足了功能性的需求,更通过空间的每一个细节展现了公司的品牌精神。该设计成功地实现了历史与未来的融合,既尊重了公司多年来在IT行业的成就,又向未来的技术发展和创新致敬。空间中的每一项设计选择,都深刻反映了YOONCOMS的愿景:以创新驱动数字化转型,并通过团队的紧密协作和技术力量,推动社会的数字化进程。        

  • Jason / 设计师

    2025-02-13 20:22


    #办公智造#

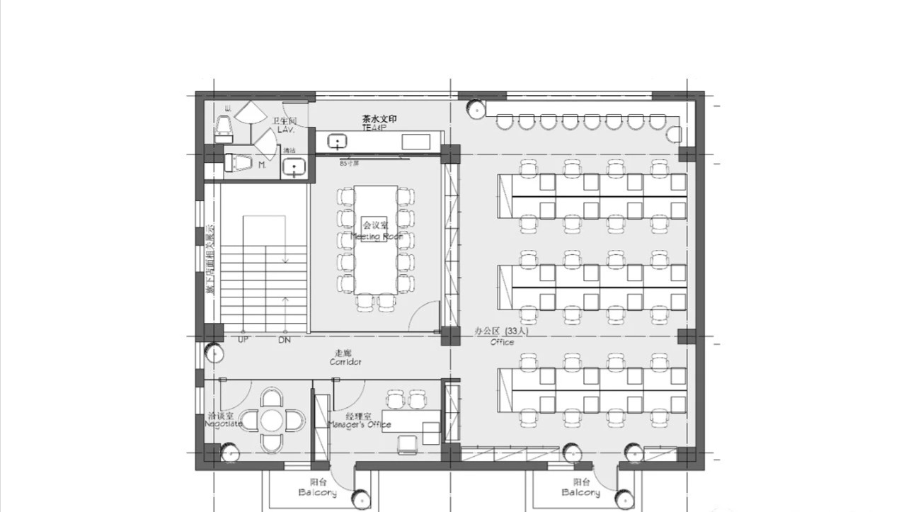
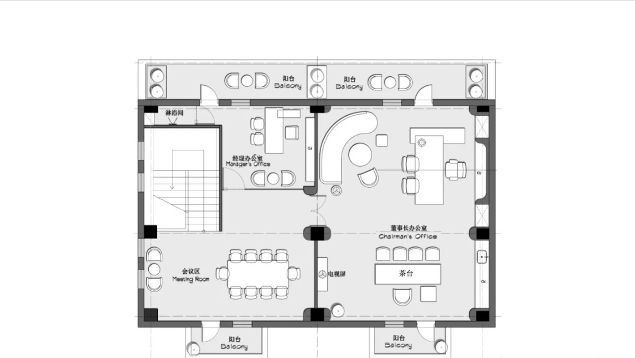
    本案现代风办公空间,是对简约美学的极致追求,更是对高效办公理念的完美诠释。设计师以简洁的线条、纯粹的色彩、开放的布局,为人们创造了一个舒适、自由、充满创造力的工作环境。
    开放式的办公区,大面积的玻璃幕墙,让自然光线如流水般倾泻而入,每一寸角落都被温柔地照亮。空间布局遵循着极简主义的原则,没有多余的隔断和繁复的装饰,自然纯粹。会议区简洁大气的会议桌,搭配着舒适的椅子,墙上挂着先进的投影设备和智能白板。这里不仅是讨论决策的场所,更是思想碰撞与交流的舞台。
    董事长办公室空间以中性色调为主,纯净的白、沉稳的棕,再搭配上一抹明亮的绿色作为点缀,既显得宁静雅致,又不失活力与朝气。沉稳的色调和简洁的布局相得益彰,营造出一种庄重而不失现代感的氛围。        


  • #办公智造#

    机器人办公空间        

  • 小麦庆 / 设计师

    2025-02-12 20:45


    #标准施工#

    背景墙        

  • 乌拉西 / 设计师

    2025-02-12 20:43


    #办公智造#

    办公空间设计        


  • #办公智造#

    KUMOKUMO总部办公室
    在解决层高问题上采用了三种方案,分别为:1、大厅天花采用镜面处理,结合墙面局部镜面反射,营造出盗梦感接待空间;2、二层选择裸顶,对功能性设备走线及寻找结构关系作为设计要点,如会议的照明设计采用多折弯射灯与结构钢梁融为一体;3、三层顶面则是在拆除老旧后给设计最惊喜的地方,原始杨松结构内屋面坡顶及金属人字梁渗透着1922年至今的厚重历史气息,这股气息成为了三层设计的衍生点,选择部分裸露坡屋顶后,在空间中还寻找了6个点位,设计了6根半圆柱来支撑人字梁,形成了一股能牢牢托住这个气息的力量。        


  • #办公智造#

    KUMOKUMO总部办公室        


  • #办公智造#

    KUMOKUMO总部办公室        

发直播

公开