装修案例
灵感美图
找设计
找工长
看工地
记住密码
我已阅读并同意注册协议
发直播
办公空间实景图
企业展厅实景图
...
办公室改造
滨江海亮大厦(1)
滨江海亮大厦(2)
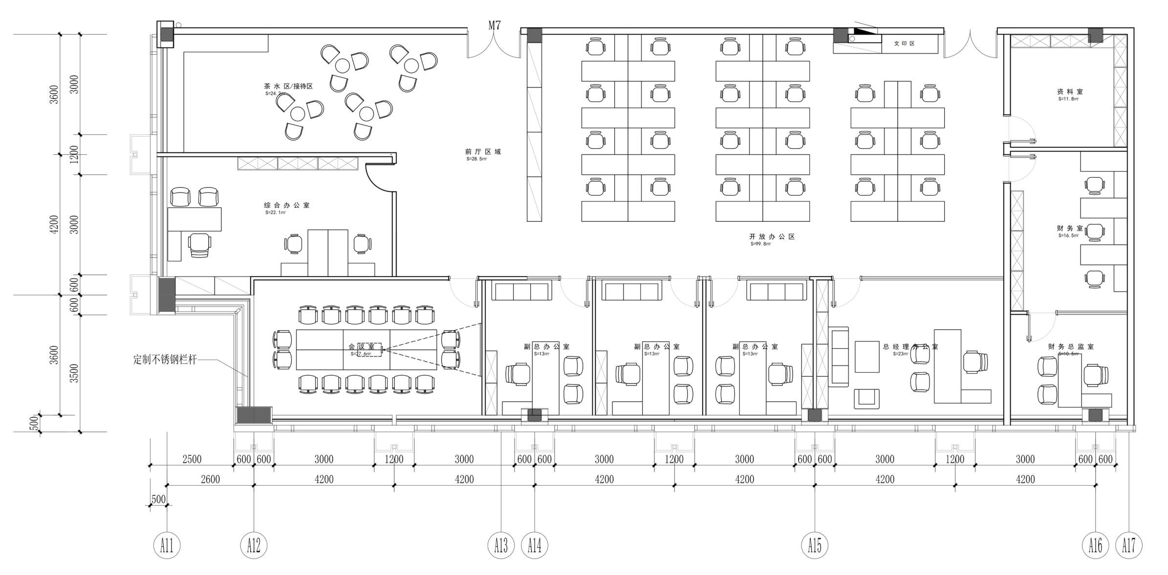
平面方案
康夫办公空间