装修案例
灵感美图
找设计
找工长
看工地
记住密码
我已阅读并同意注册协议
发布话题
办公室实景图…
俊云科技办公室…
迦恩律师事务所办公室毕业照…
直真科技办公室…
办公室方案设计…
办公室设计
办公室设计赏析…
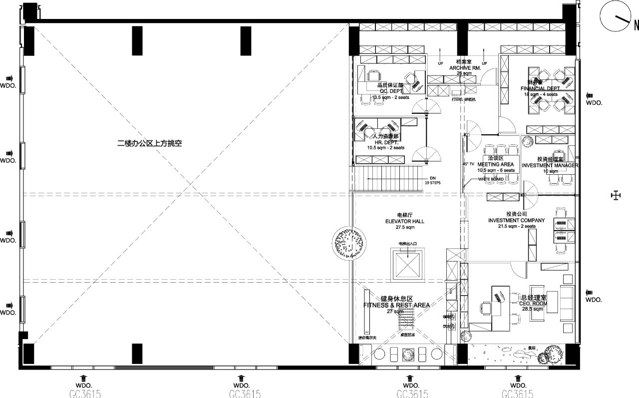
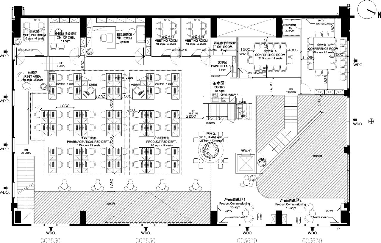
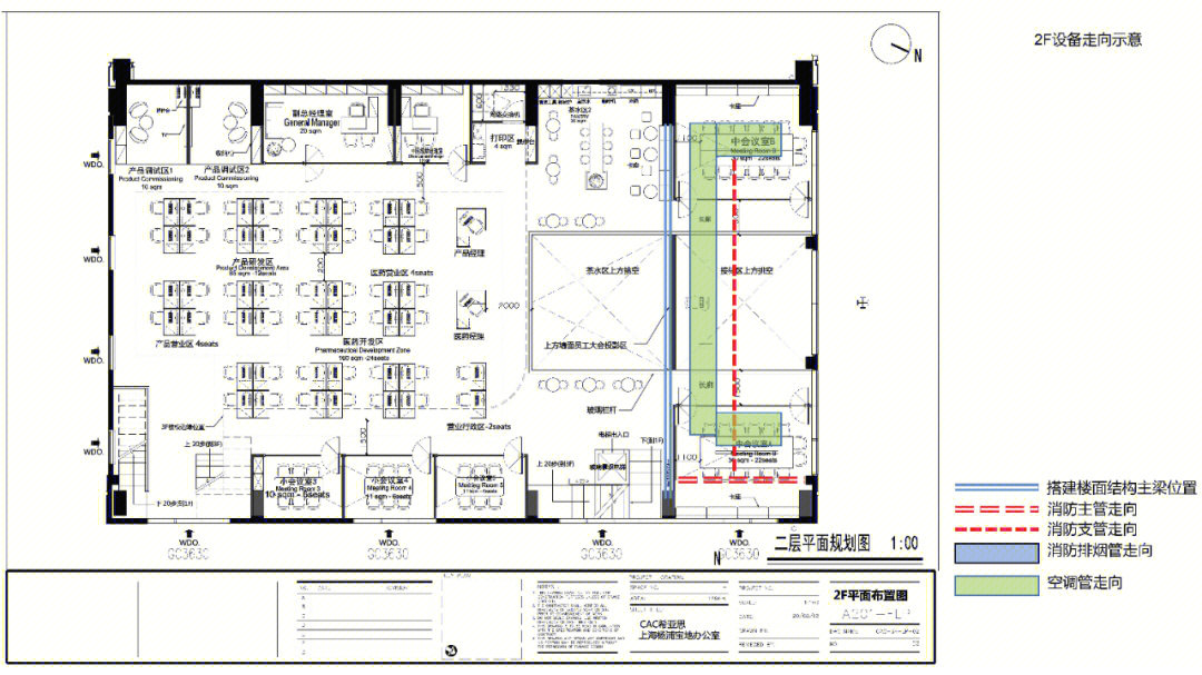
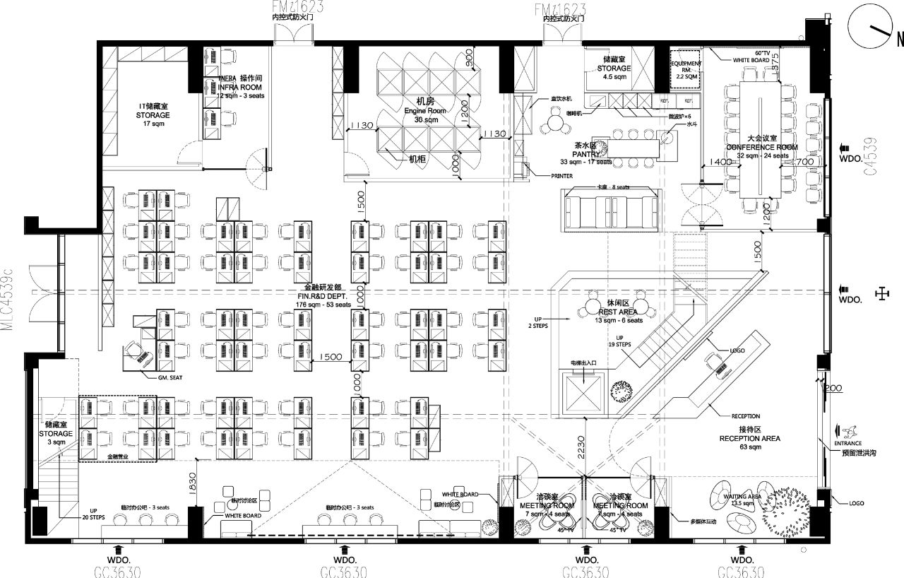
CAC办公室…