装修案例
灵感美图
找设计
找工长
看工地
记住密码
我已阅读并同意注册协议
发布话题
党群服务中心(2)
党群服务中心(3)
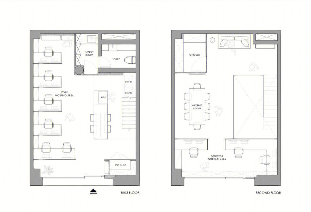
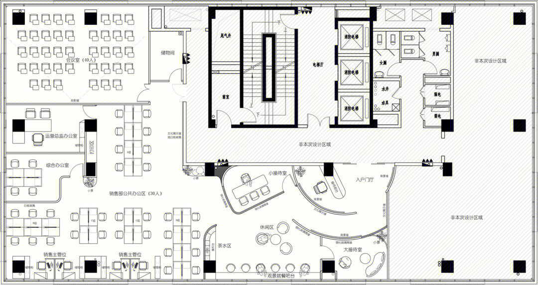
办公室实景图…
别人家办公室 | 105
方案赏析…
实景图…
方案…
效果图…