当前位置:首页 > 户型图分析

#办公智造#

阅读 961241 | 粉丝 961241

  • 敏颜 / 设计师

    2022年12月01日 10:34:05

    + 关注
    #办公智造#

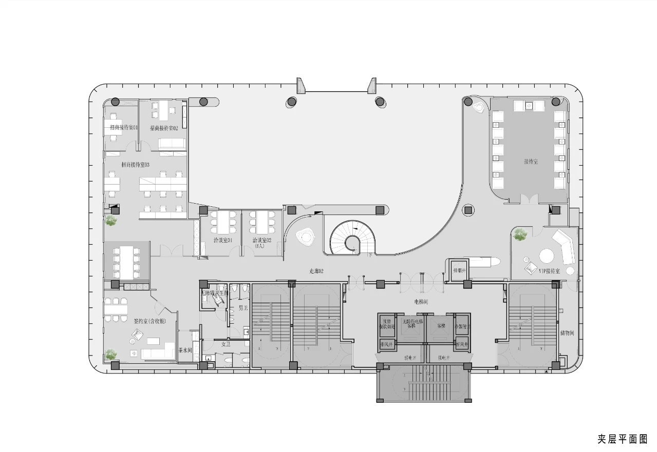
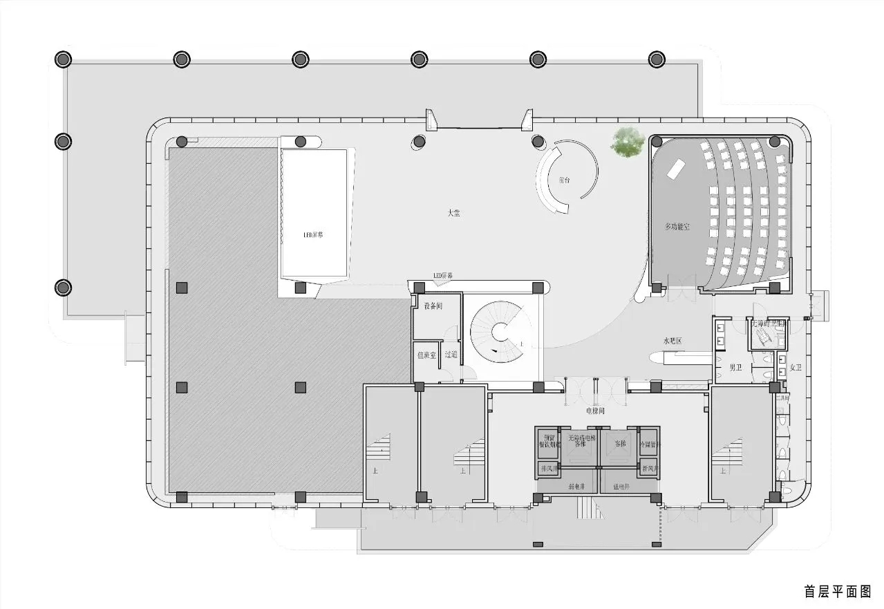
    项目共四层空间

    以大堂部分的现代科技感为始发
    构建了空间蓝白调为主的色彩系统
    结合流动形态的不锈钢装饰线条
    屏幕瀑布意境的背景动图
    让视觉在宁静中流动        

  • 敏颜 / 设计师

    2022年12月01日 10:32:07

    + 关注
    #办公智造#

    效果图方案        

  • Siri / 设计师

    2022年12月01日 10:07:38

    + 关注
    #办公智造#

    别人家办公室 | 101        

  • 李明 / 设计师

    2022年12月01日 10:05:39

    + 关注
    #办公智造#

    办公室门厅        

  • 毛均峰 / 设计师

    2022年12月01日 10:02:05

    + 关注
    #办公智造# 原木构筑的明亮与宁静…

  • 魏馨琪 / 设计师

    2022年12月01日 09:46:31

    + 关注
    #办公智造#

    设计师运用“水”流动、可塑、充满生命力的特征,将环形流线贯穿全局,各功能分区按照需求错峰叠加,并将每个模块按需求配合添置艺术构件,适配其“流畅多元”的办公特质。
    线的曲直、物的虚实,接待台涓涓细流的造型饱含水流之形,似静似动,温柔而自由。夹层暗藏灯带的效果,更为精神领域带来延伸与舒适。        

  • 魏馨琪 / 设计师

    2022年12月01日 09:44:32

    + 关注
    #办公智造#

    宽敞开阔的待客区域,是办公空间承载的社交属性。总裁办公高端配备了接待区、卧室、秘书台,丰富而厚重,符合前沿行业具有战略眼光的圈层定位,全方位尊享私人定制工作与生活。
    恰到好处的木饰面色彩,建造与设计都牵涉着方方面面。从空间到人文,里面蕴藏着原始而简单的心境。
    内敛的布局设计,通透的光线与开阔感,是商务精英化的私享空间,更是具备亲和力的待客之所。        

  • 魏馨琪 / 设计师

    2022年12月01日 09:41:56

    + 关注
    #办公智造#

    环境里面如何把人与人的关系考虑进来,在美感之外,磨合出关于人性、关于情绪的寄托。茶室,是一处静心、静茶的空间,扮演了重要的情绪转换的功能。        

发布话题

公开