当前位置:首页 > 户型图分析

#办公智造#

阅读 960523 | 粉丝 960523

  • 阿峰 / 设计师

    2022年11月26日 23:12:53

    + 关注
    #办公智造#

    办公室实景图…        

  • 木子李 / 设计师

    2022年11月26日 23:11:46

    + 关注
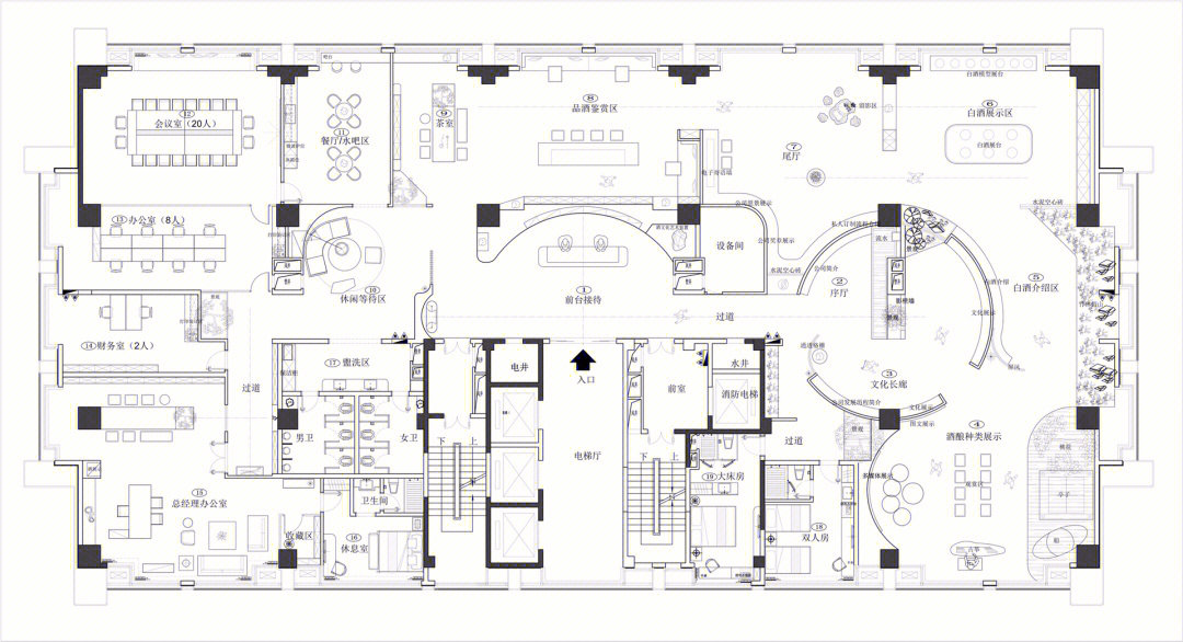
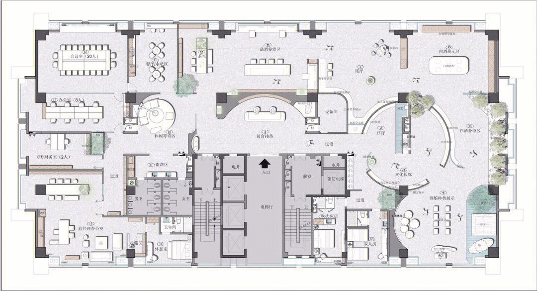
    #办公智造#

    平面布置图…        

  • 无忌 / 设计师

    2022年11月26日 22:02:33

    + 关注
    #办公智造#

    办公室效果图…        

  • 戴宁 / 设计师

    2022年11月26日 21:59:09

    + 关注
    #办公智造#

    架空层设计…        

  • 木子李 / 设计师

    2022年11月26日 20:00:23

    + 关注
    #办公智造#

    设计理念:
    本案例利用高饱和色彩,并摒弃繁琐设计元素,开启一种全新的办公模式,让美感功能与人体功能并存,创造一个充满活力理想的办公空间。
    室内空间包含了许多元素,如办公、会议、娱乐、座谈、休息等,每个区域都有着独特的魅力,在理解功能性的基础之上,合理的规划空间、动线、比例、尺度、材料、色彩,这样的设计才能打动人。        

  • 杜飞 / 设计师

    2022年11月26日 19:42:23

    + 关注
    #办公智造#

    用设计打造企业文化,塑造企业精神。空间中以中式风格为基础打造高效、整洁、舒适的办公环境。简洁的线条感,巧妙的结构咬合无不是对古代工匠精神的致敬与传承,彰显着企业成为行业标杆的决心与信心。        

  • 毛均峰 / 设计师

    2022年11月26日 18:52:32

    + 关注
    #办公智造#

    LOGO墙…        

  • Diana / 设计师

    2022年11月26日 17:04:55

    + 关注
    #办公智造#

    瓦松绿在办公室设计中的使用…        

发布话题

公开