当前位置:首页 > 户型图分析

#办公智造#

阅读 959458 | 粉丝 959458

  • 小敏island / 设计师

    2022年11月24日 07:07:35

    + 关注
    #办公智造#

    地面用灰色平铺搭配纯净的白色背景,在清新典雅的蓝色调墙面映衬下空间变得更具时尚        

  • 文成 / 设计师

    2022年11月23日 22:05:49

    + 关注
    #办公智造#

    报告厅两套设计方案…        

  • Siri / 设计师

    2022年11月23日 21:56:39

    + 关注
    #办公智造#

    别人家办公室 | 098        

  • 王高君 / 设计师

    2022年11月23日 18:47:03

    + 关注
    #办公智造#

    往往是给客户留下第一深刻印象的关键区域,背景墙大面积使用发光墙体,这个概念我们考虑到客户是做数据分析的,有些数据的ICON,便引申了这个含义。给来访用户传达出企业冷静,分析,科技感的品牌印象        

  • 思琪 / 设计师

    2022年11月23日 18:32:38

    + 关注
    #办公智造#

    实景图…        

  • 陈澄 / 设计师

    2022年11月23日 18:29:47

    + 关注
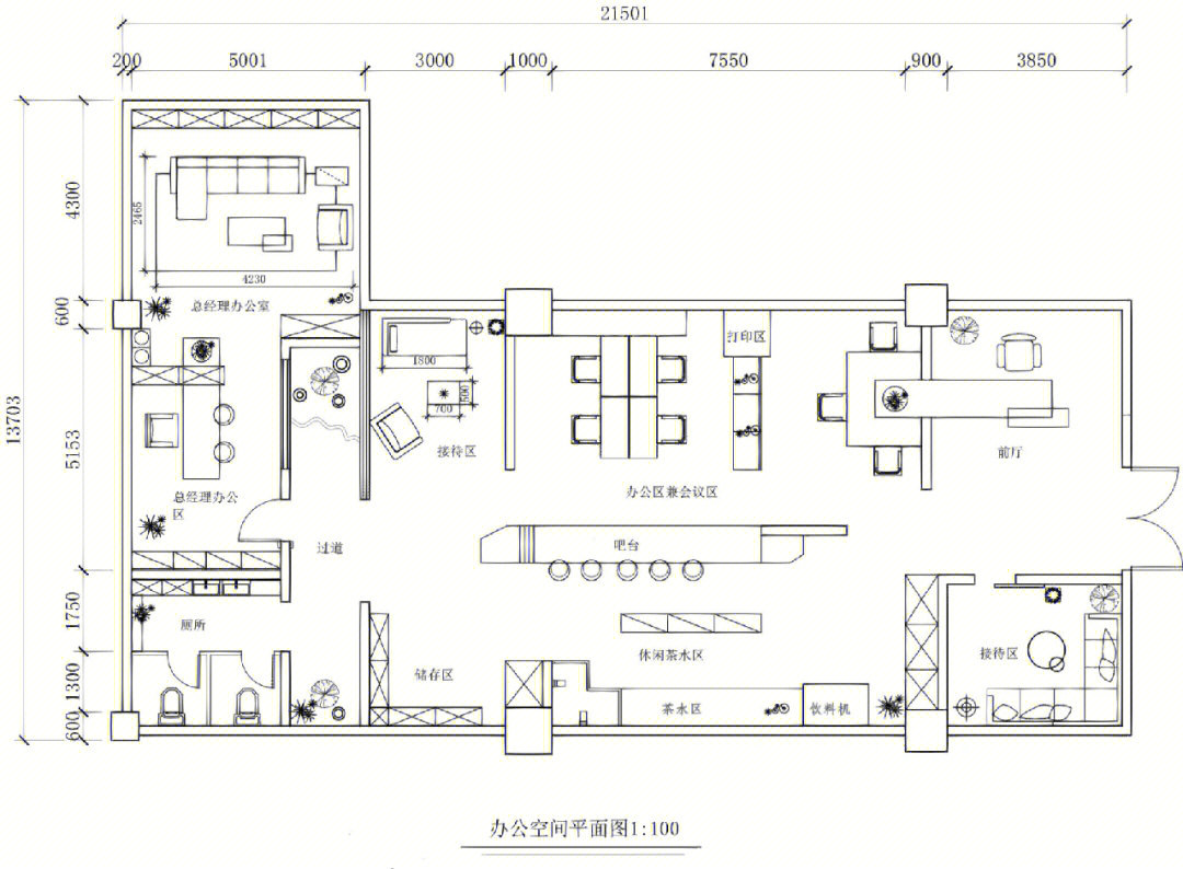
    #办公智造#

    平面布置图…        

  • / 设计师

    2022年11月23日 17:16:34

    + 关注
    #办公智造#

    前厅接待区以干净的黑白灰为主色调,加以木饰面作为点缀,在凸显空间现代质感和精致大气之余,亦增加了空间的色彩层次和休闲格调。自由开放的空间氛围、干净的大理石前台、舒适明亮的光线,营造出一个明快清爽、精致个性而又轻松愉悦的工作形态空间,让人入户后眼前一亮层层递进从而完成空间情感的理性表述。
    木色的前台代表了包容、温和、平静,简单的,同时用线型灯搭配,简约又和谐。前台背景、屋顶、墙饰、门,无处不见原木色,低调而内敛,很容易生出亲切感。条形办公家具与暖色调的灯光,以及一些线型元素,都为氛围的营造提供了帮助。
    茶水区天花木饰面将该区域进行空间分割,地板材质与天花相呼应并放置了一张纹理感强烈的定制大理石长桌,搭配黑色哑光不锈钢茶水柜以及大面积落地窗让整个空间简洁又明亮,令人格外舒适放松。
    接待区海洋蓝色彩的座椅让办公空间更赋年轻活力的色彩,在木色和灰色的映衬下,蓝色更加醒目、清澈,让人享受被清爽怀抱的舒适感。
    办公休息区,两面全景落地玻璃、干净利落的大理石高吧台搭配黑色木纹吧台椅,与整体空间的黑白灰达成了和谐的统一。极简舒适的设计也让办公者工作后疲惫的身心得以放松。        

  • / 设计师

    2022年11月23日 17:13:57

    + 关注
    #办公智造#

    绿色是主张亲近自然的颜色,正如餐盟严选的办公室,就是在办公室里种下一片绿意。绿色工位隔断,使空间视野得到了无限的延伸。随着自然光和灯光的不断变化,可以使人们在办公空间的各个角落不同时间看到很多不一样的景色。这一切令使用者与外界变化产生连结,同时有效减去隔阂内外的屏蔽感受,营造了轻松工作的氛围。
    办公空间为创意和艺术工作提供了美妙的氛围,通过对空间功能层层剖析,捕捉不同空间的感官差别,提供富有创造力的工作环境。简约现代的风格,打破传统的设计策略,大气鲜明的色彩,将精致优雅融入到简约的现代风格当中,在餐盟严选,这一切都恰到好处。        

发布话题

公开