当前位置:首页 > 户型图分析

#办公智造#

阅读 959257 | 粉丝 959257

  • 小敏island / 设计师

    2022年11月22日 19:26:31

    + 关注
    #办公智造#

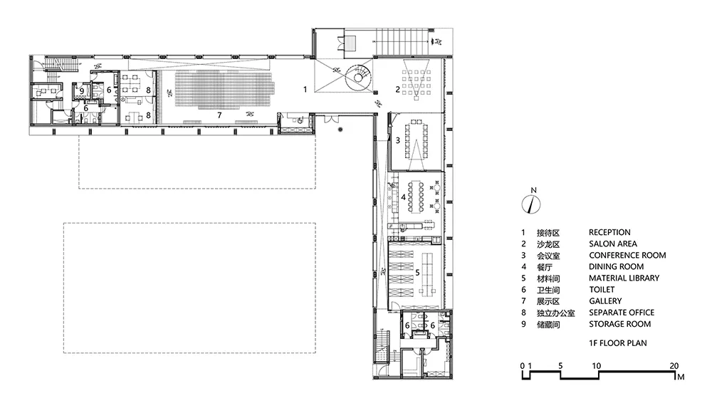
    整体空间以现代、简约的创意办公风格为设计基调,以“科技”、“时尚”、“创造”为主题。
    围绕商务接待、智能办公及休闲洽谈功能,将整个空间划分为,开放办公区,独立办公区,功能性空间及共享空间。
    灰色与白色交互相应,简洁舒服,又充满了气质。        

  • 小敏island / 设计师

    2022年11月22日 19:24:57

    + 关注
    #办公智造#

    办公室整体色调采用黑白冷调,使人的心情能够沉静下来,提升工作效率。        

  • MING / 设计师

    2022年11月22日 18:54:56

    + 关注
    #办公智造#

    从门厅的左侧步入办公空间,迎面可以看到一处绿色造景,绿植搭配假山,把自然景观搬进了室内,非常的养眼。而入口隔断的背面,则为镂空壁龛设计,使该空间得到了充分的利用。
    为将空间的作用达到最大化,设计师对办公区域作了开放式的设计,开放式的办公区是高密度人员流动的地方,设计师关注于采光及空间的通透性。敞开式的办公环境,也便于员工之间的相互交流与沟通,有利于提升工作效率。        

  • 毛均峰 / 设计师

    2022年11月22日 18:42:44

    + 关注
    #办公智造# 主入口毗邻两翼交汇处,踏步长廊不断延伸引人深入,内外衔接共同构筑宽敞的前厅,仪式感与大气格调不彰自显。基于侧面窗口尺度与比例关系转折而出的金属板与壹舍LOGO,纯粹的用材与配色,在伊始就奠定干练简约的面貌。
    接待前厅宛如枢纽一般,不同的功能分区围绕其向两边蔓延,追求开放性与流动性。基于原始建筑的大片窗体,塑造出重复式、阵列式的套口秩序。多处挑空让光线得以平稳保证,也为两层之间注入了互动,令交流渗透发生。

  • 毛均峰 / 设计师

    2022年11月22日 18:40:40

    + 关注
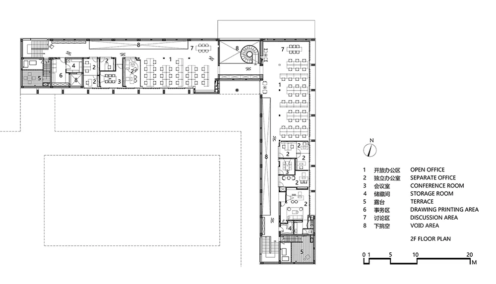
    #办公智造# 挑空处通道,仿若悠长的小巷。循步深入,餐厅予以木质包裹出静谧之感,多元的落座形式,高低错落的关系勾勒轻松的气氛。

  • 毛均峰 / 设计师

    2022年11月22日 18:38:42

    + 关注
    #办公智造# 开放办公区避免了传统格子间的隔阂之感,又借助洞洞板建构起朦胧的趣味。工位的排布,并未完全工整对齐,而是采用长短穿插的韵律,透露出动态与活力。

  • 毛均峰 / 设计师

    2022年11月22日 18:37:17

    + 关注
    #办公智造# 暗黑基调打底,包容、低调且高级的质感油然而生。石材上凹凸打磨的痕迹,一定程度上弱化了方正的棱角,显得松弛与率性,也滋养出韵味与光泽,别有一番玩味。

  • Diana / 设计师

    2022年11月22日 16:44:21

    + 关注
    #办公智造#

    办公空间设计…        

发布话题

公开