装修案例
灵感美图
找设计
找工长
看工地
记住密码
我已阅读并同意注册协议
发布话题
个性化办公室设计方案…
方案…
办公室实景图…
设计公司办公室…
玻璃隔断安装完成后效果…
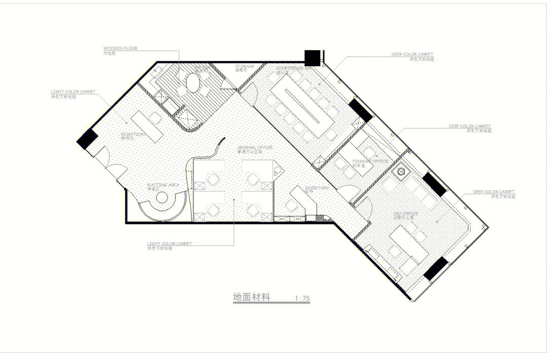
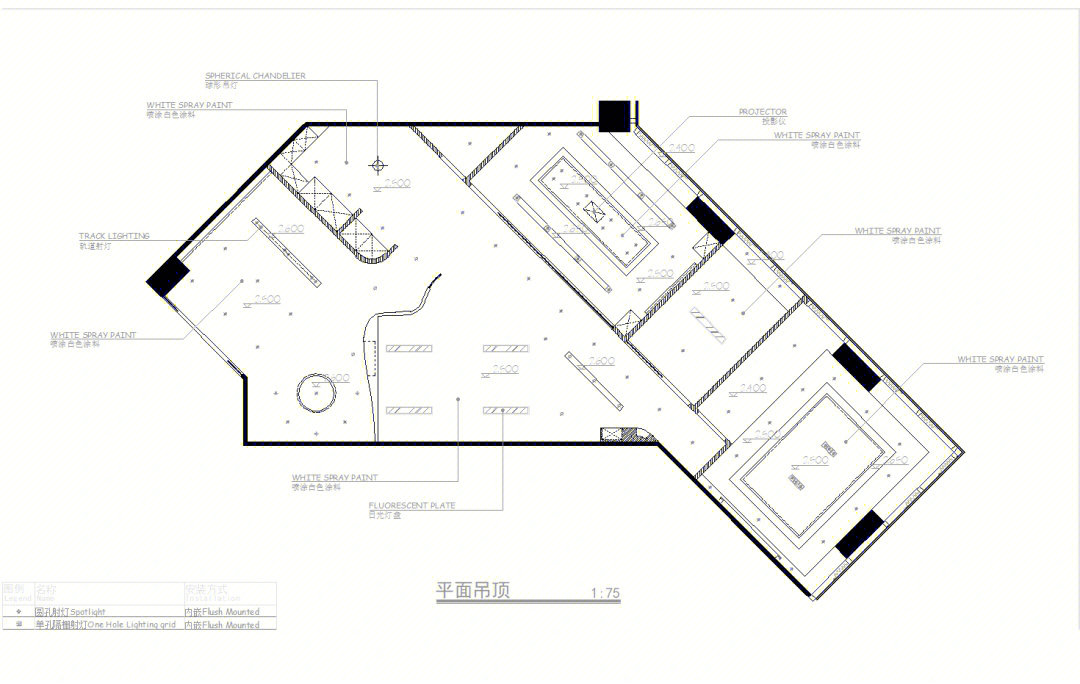
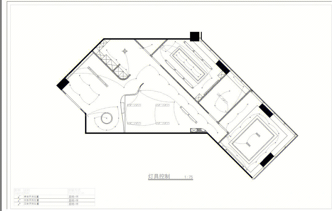
办公室设计图纸…
办公室效果图…
本案是工业与现代风的融合