当前位置:首页 > 户型图分析

#办公智造#

阅读 955036 | 粉丝 955036

  • 木子李 / 设计师

    2022年10月29日 18:27:51

    + 关注
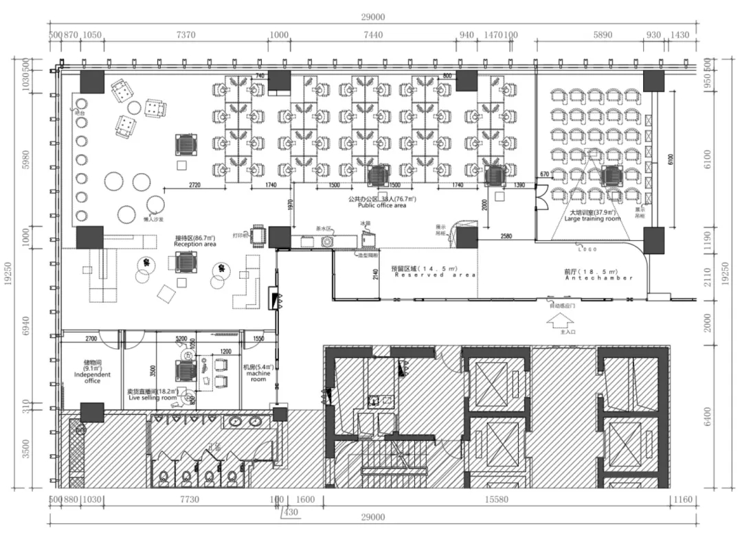
    #办公智造#

    灰色办公空间(过道用灯)        

  • 无忌 / 设计师

    2022年10月29日 18:02:15

    + 关注
    #办公智造#

    设计师从油藏中发现的含油砂层形态为灵感设计而来的。柔软的织物模仿砂岩地层形态,轻盈垂下,同地面所铺设的,同样有着织物感的Bolon编织地板遥相呼应,为会议室和休息区营造出一派灵动柔美、温暖惬意的环境氛围。        

  • 无忌 / 设计师

    2022年10月29日 18:00:21

    + 关注
    #办公智造#

    整个空间中,除了卫生间和水区,完全没有任何固定墙体,所有的办公室和会议室以及家具都是可移动的,以支持各种团队在执行任务时的各项工作需求。        

  • 刘君雅 / 设计师

    2022年10月29日 16:43:15

    + 关注
    #办公智造#

    办公室毕业照…        

  • David / 设计师

    2022年10月29日 14:13:31

    + 关注
    #办公智造#

    大楼中厅设计…        

  • / 设计师

    2022年10月29日 12:44:35

    + 关注
    #办公智造#

    Goodlife办公室的设计是一种新的办公风格,由光、颜色和材料之间的关系共同建立起来。办公室的入口处是一个有着Goodlife标志性的雕塑作品,采用红色、蓝色和绿色的灯光来塑造空间。        

  • / 设计师

    2022年10月29日 12:42:16

    + 关注
    #办公智造#

    精心构思的休息区成为了空间的焦点,红、绿、蓝三条彩色光带将整个区域巧妙地融合、交织在一起,渲染了一场关于光、影、色彩的梦幻情境,给人留下了深刻的、生动的记忆。        

  • Camille yu / 设计师

    2022年10月29日 12:38:31

    + 关注
    #办公智造#

    本设计致力于将空间打造为一个为女性赋能的明亮温暖的时尚空间。
    整个空间以白色为主,用粉色作为整个空间的点缀色。背景墙是弧形,墙面设置发光logo,由玻璃砖、白色以及粉色乳胶漆墙面拼接而成,利用色彩和灯光来营造明亮包容温和的氛围        

发布话题

公开