装修案例
灵感美图
找设计
找工长
看工地
记住密码
我已阅读并同意注册协议
发布话题
黑白系办公室…
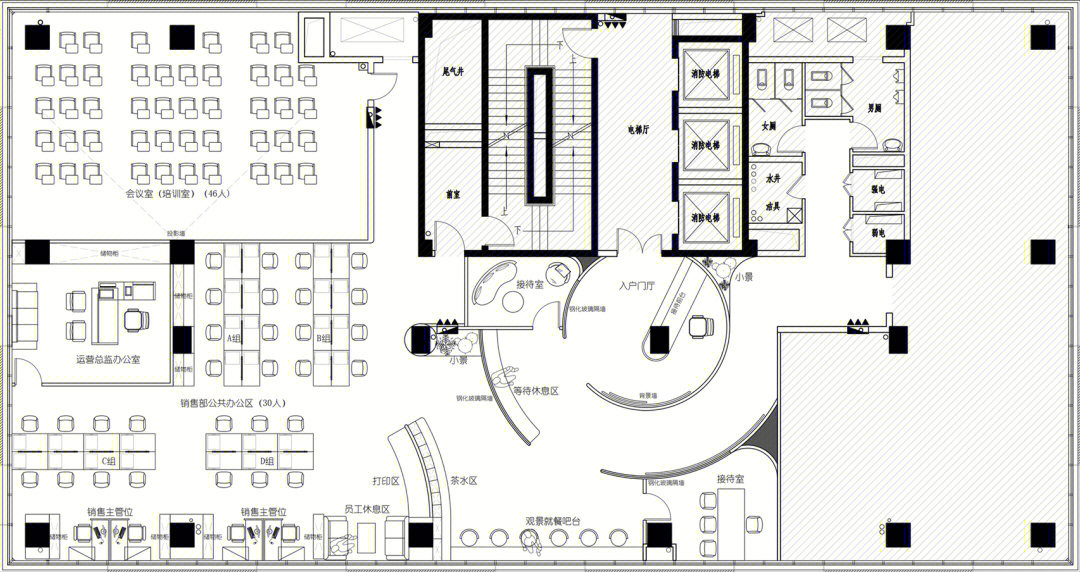
平面布置图…
别人家办公室 | 066
两组办公室实景图…
办公室效果图…
Socios.com马德里办公室…
办公室设计平面布置图…
办公室设计效果图…