装修案例
灵感美图
找设计
找工长
看工地
记住密码
我已阅读并同意注册协议
发布话题
工业风办公室效果图…
简约办公室赏析…
现代风格办公室…
办公室软装的重要性…
现代简约办公室设计…
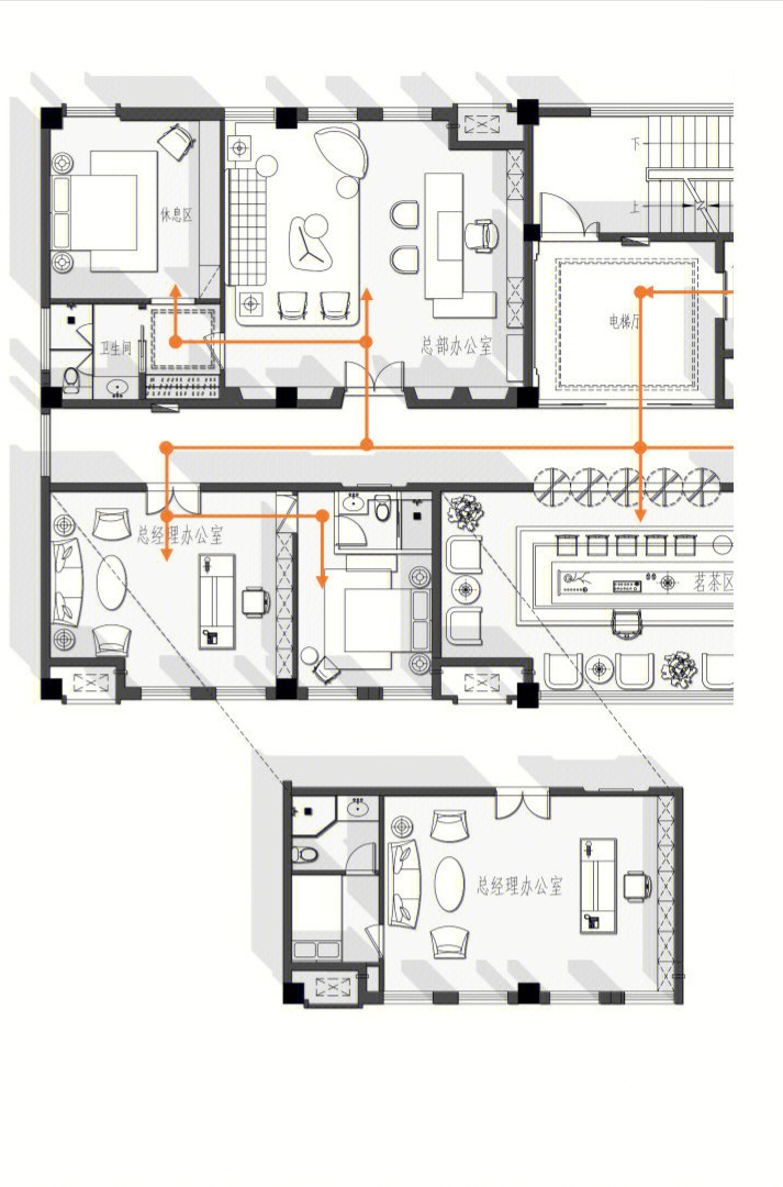
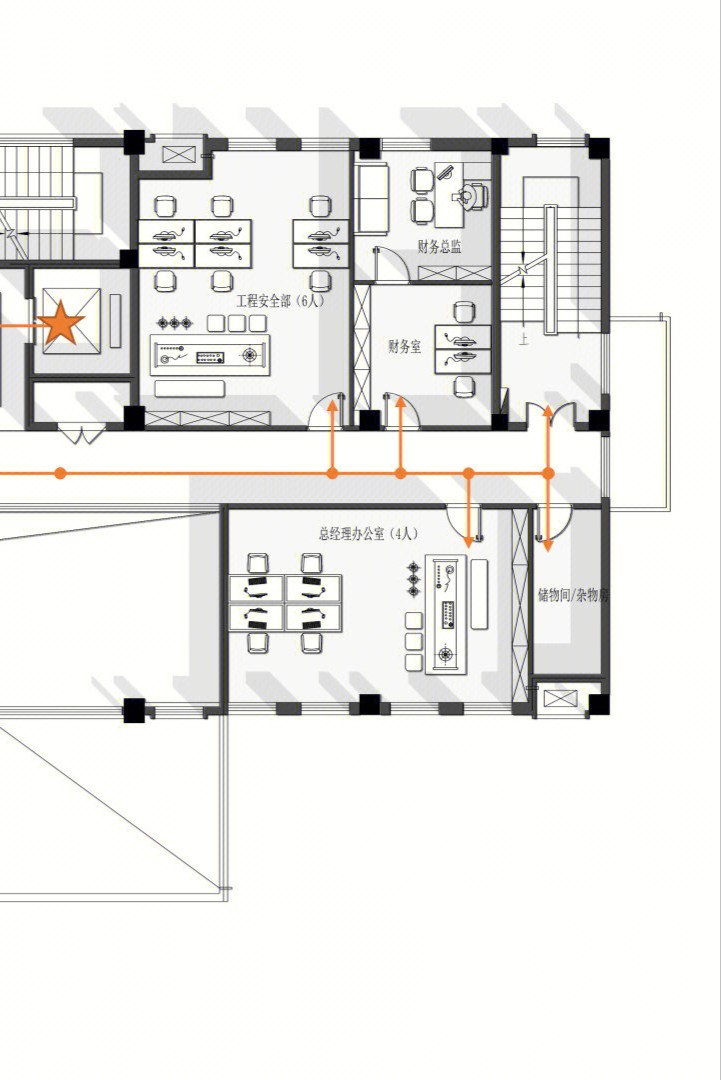
图纸…
根据采光方向设置办公布局,以均匀性、舒适性为原则为员工打造一个健康的办公环境。会议室采用玻璃隔断,最大限度地利用自然光。室内铺陈大面积的绿植造景,丰富室内的生态和灵动。
办公室实景图三组…