当前位置:首页 > 户型图分析

#办公智造#

阅读 952486 | 粉丝 952486

  • Bobo / 设计师

    2022年10月20日 11:10:57

    + 关注
    #办公智造#

    整体空间上追求简洁朴素、经久耐用的形式;在体量上追求弱化视觉,不主张强烈的视觉冲击。
    细节处理上,注重设计的温度,调性温暖且友好。选用更具亲和力的大地色系;材料上倾向选用环保而舒适的产品。        

  • Bobo / 设计师

    2022年10月20日 11:05:56

    + 关注
    #办公智造#

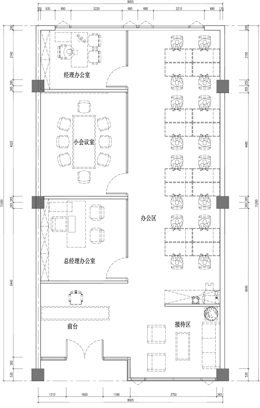
    二层空间展示        

  • Bobo / 设计师

    2022年10月20日 11:04:44

    + 关注
    #办公智造#

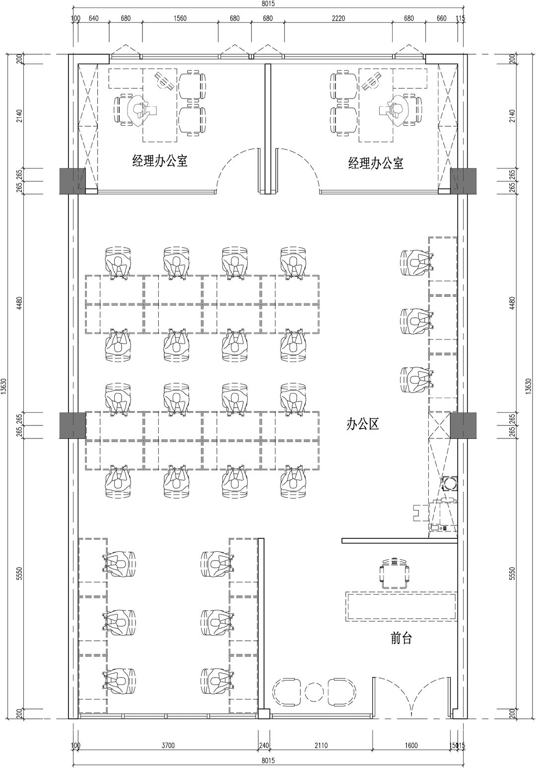
    三层空间展示        

  • 王倩 / 设计师

    2022年10月20日 10:57:00

    + 关注
    #办公智造#

    简简单单毕业照        

  • 夏毅 / 设计师

    2022年10月20日 10:41:58

    + 关注
    #办公智造#

    设计团队负责此次项目的外观改造以及整体室内设计。建筑风格现代简洁,以“块面穿插”的手法进行艺术化处理,让创意园更具年轻气息。        

  • 夏毅 / 设计师

    2022年10月20日 10:37:44

    + 关注
    #办公智造#

    设计团队延续创意园外观现代简洁风格,追求以现代设计手法去诠释INTO▪茵创空间“产业孵化基地+创新生态社区”的企业定位,期待通过室内设计给予人精神上的放松与愉悦,开启创意办公、活力社区的新形态。        

  • 夏毅 / 设计师

    2022年10月20日 10:34:37

    + 关注
    #办公智造#

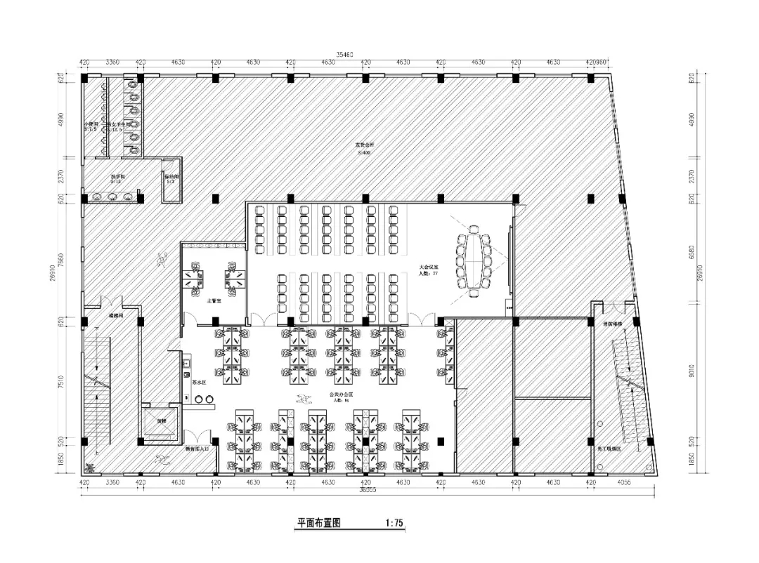
    整体空间采用黑白灰色调设计,演绎出极简纯粹的空间氛围。空间线条简洁,比例和谐,简约又不失精致;偌大的落地窗设计,引入室外自然景观,明亮的光透过柔软的窗纱,为空间增添一丝静谧的感觉。
    办公区域延续黑白灰色调,黑色的凝炼、白色的纯净、灰色的调和,在三者的交互下隐藏着空间沉着冷静的情绪,像极了一位运筹帷幄的智者。        

  • 夏毅 / 设计师

    2022年10月20日 10:27:37

    + 关注
    #办公智造#

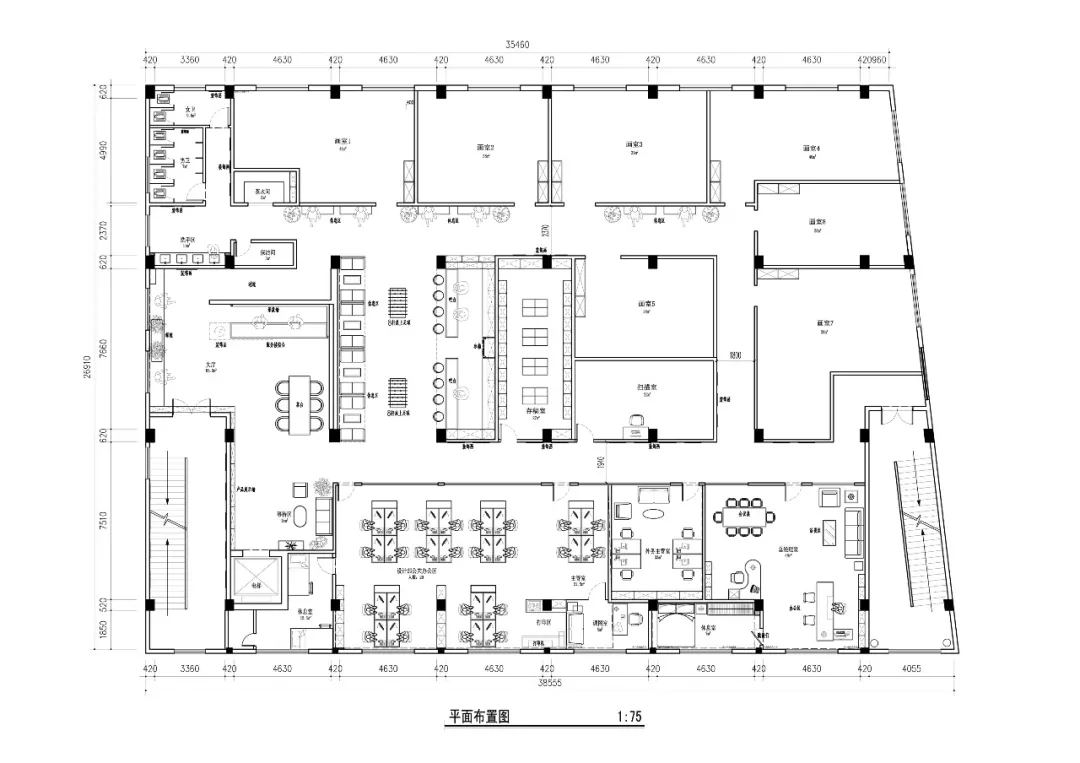
    温润的木饰面装饰前台背景,自然的材料和纹理,展示了该办公空间设计有机自然的态度。
    办公区域采用裸露的天花设计,给人自然、开放的感觉,设计团队为最大限度地利用自然光照,空间引入玻璃隔断,产生视觉的通透感。        

发布话题

公开