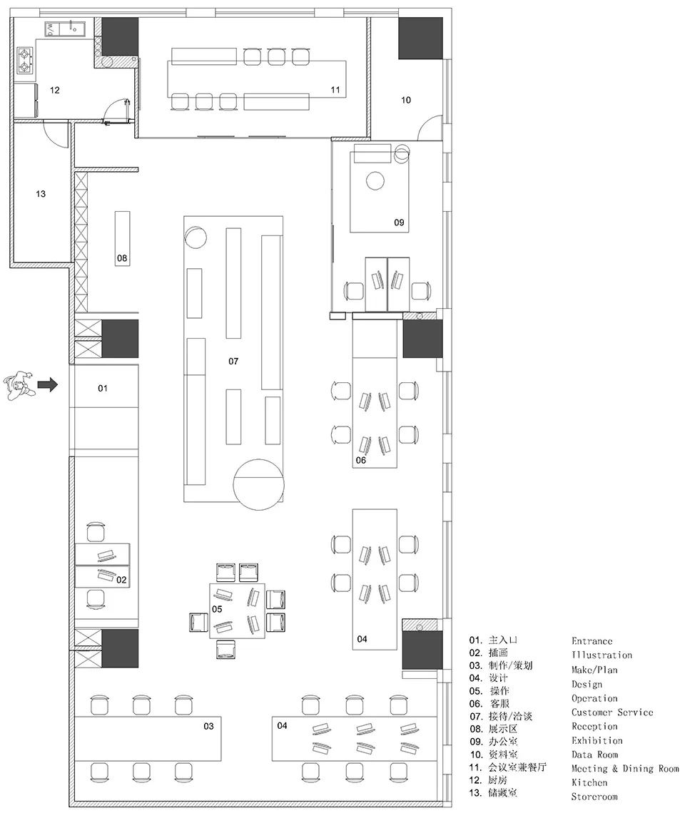
当前位置:首页 > 户型图分析

#办公智造#

阅读 949201 | 粉丝 949201

  • 俊泽 / 设计师

    2022年10月03日 06:51:41

    + 关注
    #办公智造#

    小户型办公室实景图…        

  • 夏毅 / 设计师

    2022年10月03日 06:31:10

    + 关注
    #办公智造#

    全案交付…        

  • 俊泽 / 设计师

    2022年10月03日 06:03:58

    + 关注
    #办公智造#

    实景图…        

  • 边洪镇

    2022年10月03日 05:59:19

    + 关注
    #办公智造#

    完工实景展示…        

  • 阿峰 / 设计师

    2022年10月03日 05:52:38

    + 关注
    #办公智造#

    接地气的办公室设计…        

  • 毛均峰 / 设计师

    2022年10月03日 05:44:51

    + 关注
    #办公智造#

    温馨的办公室设计…        

  • Camille yu / 设计师

    2022年10月02日 21:12:20

    + 关注
    #办公智造#

    设计理念
    过滤心中的顾忌——创造躁动的“界”,跨越现实与理想,突破惯性思维,沉淀潜意识的力量,为“形色界”办公室探索出属于另一个未知的“界”。在空间中强调方与圆的对比和冲突、极致的材料与形态的构成、克制的色彩与抽象的理念,创造性地表达出一个未知游戏。


    开放办公区概览:形态不一,冲突与和谐
    空间以方盒子作为主要框架,交谈区的半圆与单一体块共存,开放的形态空间延伸到顶上的圆球,形成不同边界的交汇。无墨守成规的规律可循,只有更多未知的组合。若有趣不一的元素碰撞,即使在不优质的空间里,也能赋有独一无二创造性。        

  • 李明 / 设计师

    2022年10月02日 21:07:51

    + 关注
    #办公智造#

    设计团队从大中华区的酒店中获取灵感,将挑选采集的纪念物品巧妙地装饰在办公空间的不同位置,从而营造一个连续的品牌故事体验,促进员工、访客和品牌之间的深层联系。        

发布话题

公开