当前位置:首页 > 户型图分析

#办公智造#

阅读 948643 | 粉丝 948643

  • 刘君雅 / 设计师

    2022年09月28日 12:41:08

    + 关注
    #办公智造#

    设计采用开放式办公室布局,以促进工作场所内部的沟通和团队合作,其间穿插着一系列开放空间、休闲区和协作区。同时引入了正式和非正式的空间,以便员工选择更适合其工作性质的工作模式。通常情况下,员工的工作既需要活跃的团队协作、也需要安静的独立思考,因此就有了团队型的协作房间到小型车厢座等各种设计,丰富的场景让人们随时在交流或专注之间快速切换。
    设计以地面和顶面相呼应的手法来界定开放布局中各功能区域的有效界定,从而为空间注入了无缝循环的流畅感。地面通过色彩和肌理的视觉变化向用户表明功能区的变化,从而取代实体隔墙的构建。        

  • 刘君雅 / 设计师

    2022年09月28日 12:37:56

    + 关注
    #办公智造#

     一处可容纳全体人员的开敞活动空间位于自助餐厅旁边,185平方米的面积将同时容纳至少100人。因此,沿窗的地方采用了灵活的阶梯座设计方法。而天花也采用具有吸音性能的毛毡来制作,让这处大型聚集空间充满了迷人魅力和多元性。
    为城市工作文化注入创新设计元素,这处前卫的工作空间为我们的客户提供了一个全面的工作场所解决方案,从而准确地体现了他们无可挑剔的品味和专业的品牌形象。        

  • 大鹏 / 设计师

    2022年09月28日 12:17:57

    + 关注
    #办公智造#

    本项目是我们办公与日常生活的地方,原本是两层5.5米层高的建筑物,我们用钢结构将原来的一楼分隔成两层,二楼也增加了夹层。加建后最终是一个3层半的建筑。
    一楼设置了室内园景、书柜、西厨及吧台,也设置了长沙发及圆形餐桌,我们希望用一个轻松的环境去了解客户的需求或者在这里用一个下午茶的时间进行设计师之间的交流。        

  • 阿峰 / 设计师

    2022年09月28日 12:05:15

    + 关注
    #办公智造#

    实景图…        

  • 阿峰 / 设计师

    2022年09月28日 12:03:18

    + 关注
    #办公智造#

    实景图…        

  • 思琪 / 设计师

    2022年09月28日 11:10:35

    + 关注
    #办公智造#

    布局合理…                        

  • MING / 设计师

    2022年09月28日 11:05:16

    + 关注
    #办公智造#

    落地实景展示…        

    筑先生:正式运营了
  • 文成 / 设计师

    2022年09月28日 11:03:51

    + 关注
    #办公智造#

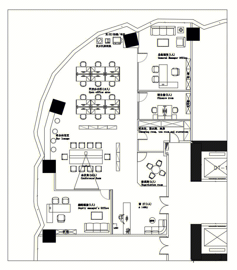
    抠平面布局…        

发布话题

公开