当前位置:首页 > 户型图分析

#办公智造#

阅读 948049 | 粉丝 948049

  • 思琪 / 设计师

    2022年09月25日 10:19:30

    + 关注
    #办公智造#

    作为一家创新型公司,IMS对办公环境设计有着特殊的专业需求。设计团队以简约、明亮的设计语言,结合采光和景观视野的优势,为其创建一个时尚温馨的专属办公空间。

    接待区简练而又多元的设计为访客营造了一个温馨的接待氛围;柔和温暖的灯光结合自然清新的木饰面和白色元素,勾勒出一个轻盈愉悦的空间氛围,并奠定了整个环境设计的基调。通过巧妙地灯具装饰,让原本开敞高耸的空间变得具有亲和感;同时,墙面上灰色的造型设计也颇具art deco艺术装饰风格。        


  • 饶阳 / 设计师

    2022年09月25日 10:00:13

    + 关注
    #办公智造#

    这款办公室绿色点缀很棒…        

  • 夏毅 / 设计师

    2022年09月25日 09:57:03

    + 关注
    #办公智造#

    办公室实景图                

  • 陈澄 / 设计师

    2022年09月25日 09:52:04

    + 关注
    #办公智造#

     效果图…        

  • Siri / 设计师

    2022年09月25日 09:50:48

    + 关注
    #办公智造#

    别人家办公室 | 024        

  • 戴宁 / 设计师

    2022年09月25日 09:49:05

    + 关注
    #办公智造#

    极简办公室…        

  • 小筑 / 设计师

    2022年09月25日 08:57:11

    + 关注
    #办公智造#

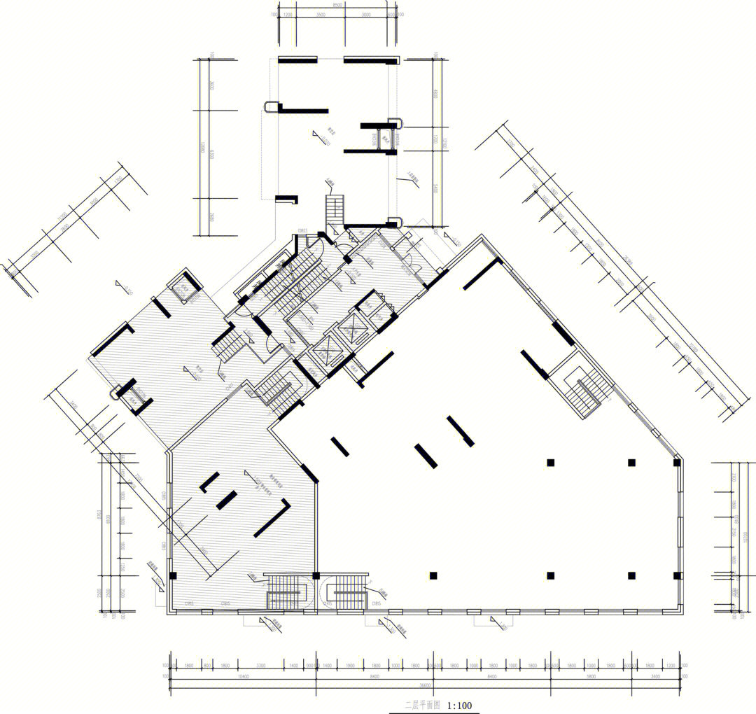
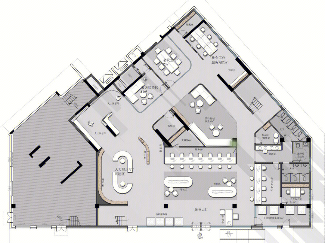
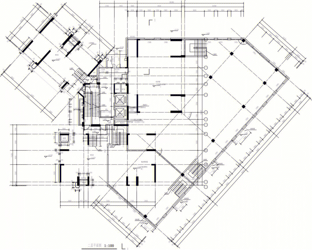
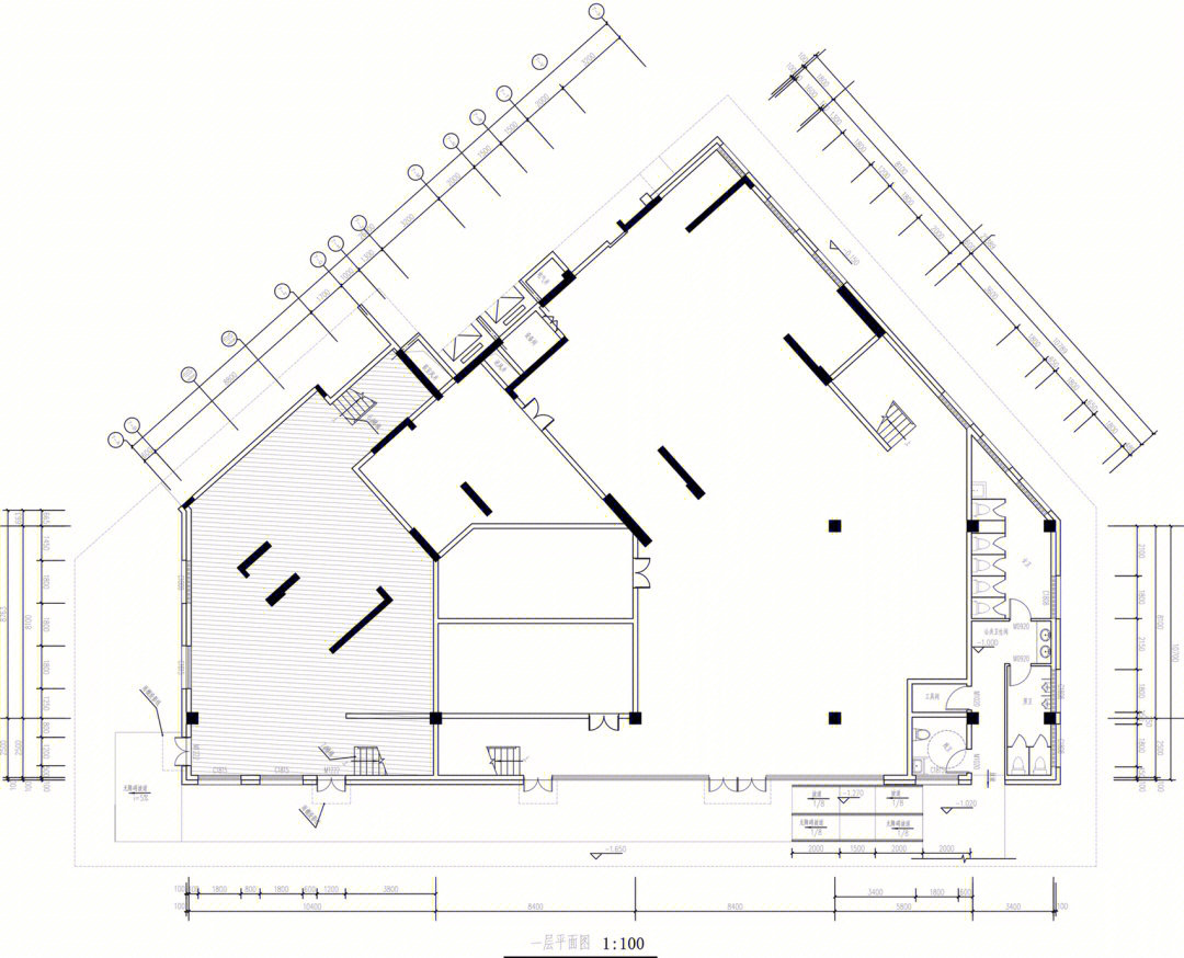
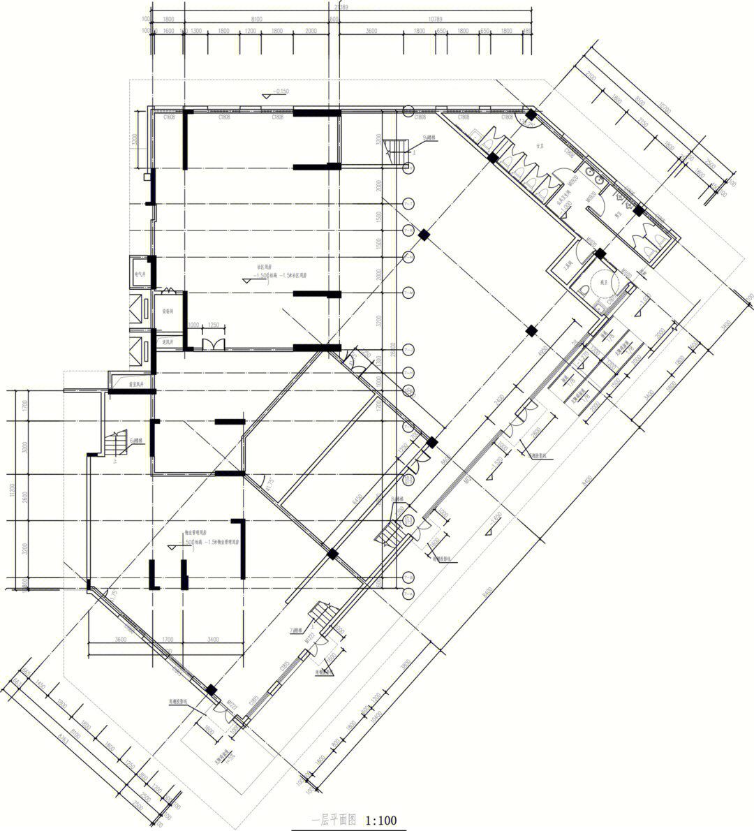
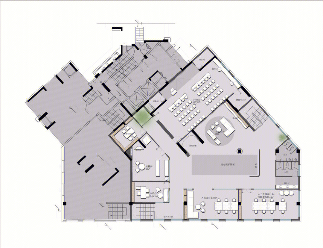
    政务中心图纸…        

  • Siri / 设计师

    2022年09月25日 08:37:29

    + 关注
    #办公智造#

    别人家办公室 | 023       

发布话题

公开