装修案例
灵感美图
找设计
找工长
看工地
记住密码
我已阅读并同意注册协议
发布话题
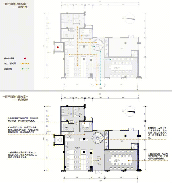
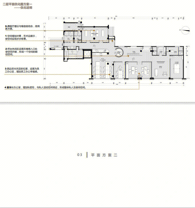
平面布置与效果…
异地办公室效果图
电子商务公司办公室设计效果图
大爱这样的办公室
大气…
深色系办公室设计
办公室装修完成图
极简办公室设计净与静
毛均峰