当前位置:首页 > 户型图分析

#办公智造#

阅读 945390 | 粉丝 945390

  • MING / 设计师

    2022年09月12日 18:25:43

    + 关注
    #办公智造#

    为了打造空间通透大气的效果,设计师选择用白色作为空间主色调,将白色天花墙体、灯带灯膜与少量蓝色打造的格窗、柜子组合,营造简约整齐、开放明亮的办公氛围。        

  • Diana / 设计师

    2022年09月12日 16:49:18

    + 关注
    #办公智造#

    现代简约风格办公室        

  • Diana / 设计师

    2022年09月12日 16:45:55

    + 关注
    #办公智造#

    现代简约风格办公室        

  • 瑾萱 / 设计师

    2022年09月12日 16:27:36

    + 关注
    #办公智造#

    六角形的独特演绎,打造出一个不一样的灵魂空间,于不规则的角落间,将优雅贯穿于设计之中,让办公场所更有家一般的温馨舒适。        

  • 小敏island / 设计师

    2022年09月12日 16:15:19

    + 关注
    #办公智造#

    对于德勤来说,联合办公区是一个全新的元素,它可以满足公司在项目和演示方面的所有需求。共同工作空间的设计为内部和外部项目提供了最大的空间可变性。室内的主要元素之一是一个特别设计的螺旋楼梯,通过它,一层与中庭和入口大厅与联合工作层相连。        

  • 巴顿 / 设计师

    2022年09月12日 15:33:37

    + 关注
    #办公智造#

    禅意办公室(1)                

  • 巴顿 / 设计师

    2022年09月12日 15:32:01

    + 关注
    #办公智造#

    禅意办公室(2)        

  • 戴宁 / 设计师

    2022年09月12日 15:21:11

    + 关注
    #办公智造#

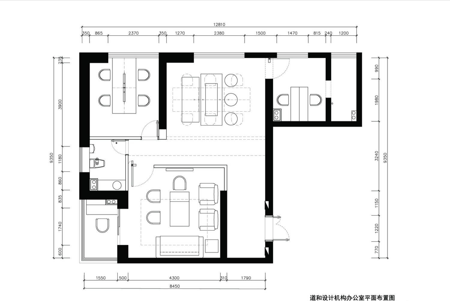
    道和设计办公室        

发布话题

公开