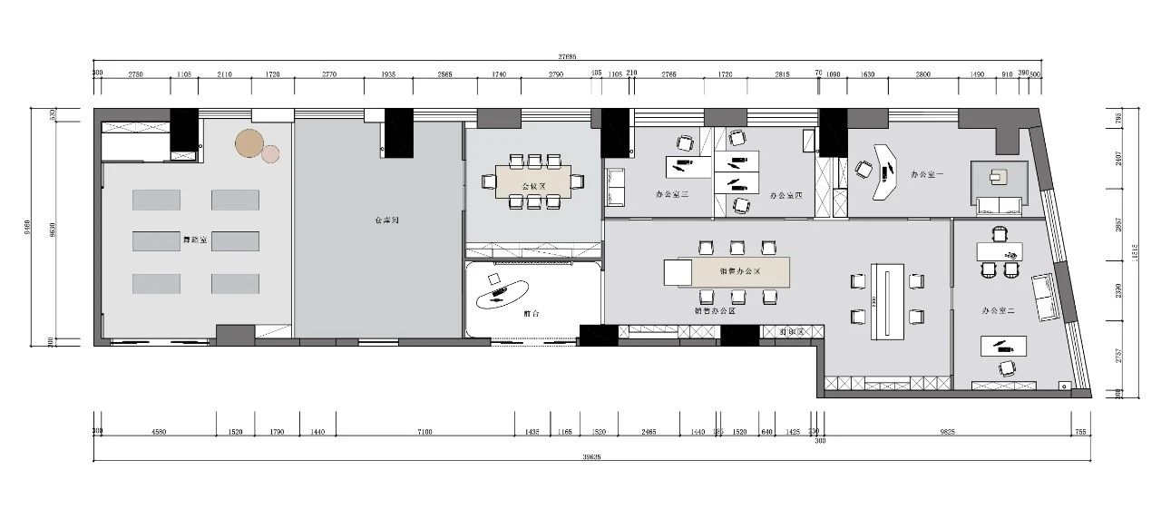
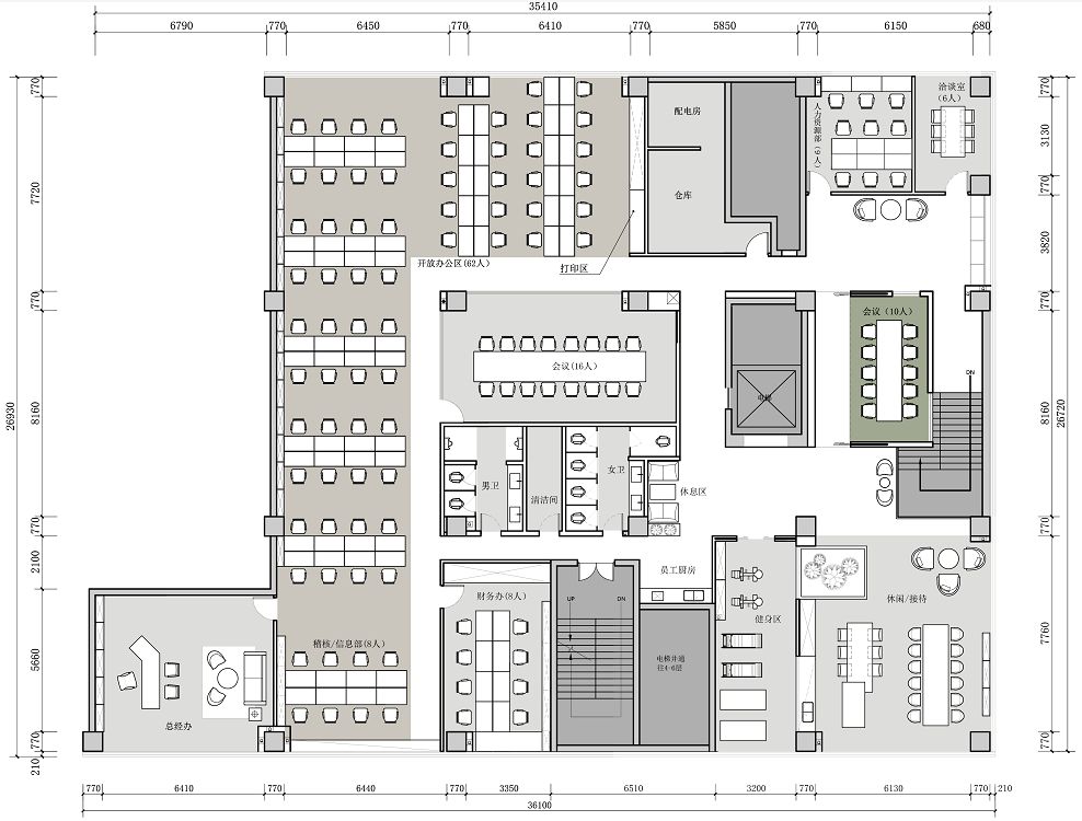
当前位置:首页 > 户型图分析

#办公智造#

阅读 939975 | 粉丝 939975

  • 小敏island / 设计师

    2020年09月17日 12:04:13

    + 关注
    #办公智造#

      前台        

    易筑大掌柜

  • 毛均峰 / 设计师

    2020年09月16日 16:15:39

    + 关注
    #办公智造# 效果图做好了…棒棒的

    毛均峰

  • 王丹丹 / 设计师

    2020年09月16日 14:52:02

    + 关注
    #办公智造#

     办公家具        

    毛均峰

  • 许哥 / 设计师

    2020年09月11日 14:31:58

    + 关注
    #办公智造#

    易筑设计 | 现代办公        

    毛均峰

  • 大鹏 / 设计师

    2020年09月10日 22:47:50

    + 关注
    #办公智造#

    易筑设计 | 美峰办公室        

    毛均峰

  • 思琪 / 设计师

    2020年09月04日 11:34:15

    + 关注
    #办公智造#

           舍弃传统呆板的办公室设计没有四四方方像城墙般的间隔,没有以白色灯光为主调取而代之,以家居的感觉和多元化情境塑造,让员工在这里找到归属感,更以不同区域的主题规划设计,创造出一种空间游览的趣味。由入口处旋踵往右,穿过迂回的走廊,规划出会客洽谈区别于一般的会客及洽谈空间以开放式的编排原则,设计出整个空间体验。
         走进工作空间,顿时进入一个以白色为主调的环境,使用白色条形几何作天花板的装饰,整齐有序。线性灯带让过道纵深感更强,让视觉继续两边延伸,让空间显得更加宽阔。累了倦了可以来休闲吧小坐,醇香咖啡甚至精酿啤酒来上一口,也许就是灵感爆发的契机,简约而不简单的工作环境让办公成为一种享受...            

    毛均峰

  • 王倩 / 设计师

    2020年09月02日 20:52:29

    + 关注
    #办公智造#

    gad        

  • 刘静 / 设计师

    2020年09月02日 13:37:13

    + 关注
    #办公智造#

     办公室局部…        

发布话题

公开