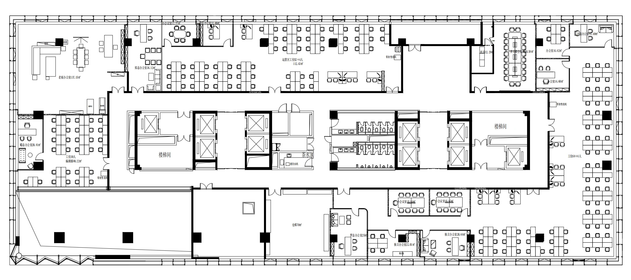
当前位置:首页 > 户型图分析

#办公智造#

阅读 938794 | 粉丝 938794

  • 夏毅 / 设计师

    2025年12月06日 07:30:42

    + 关注
    #办公智造#

    成片        

  • 王倩 / 设计师

    2025年12月06日 07:29:37

    + 关注
    #办公智造#

    立等出效果        

  • MING / 设计师

    2025年12月02日 15:06:22

    + 关注
    #办公智造#

    前厅宛若精心编排的戏剧舞台:利落的线条、亮眼的橙色玻璃前台与精心调控的照明,创造出独特的视觉景观,奠定了整体空间基调,为员工和客户构筑起情感联结,并转化为一场兼具情感共鸣与视觉沉浸的空间体验
    天然材质如木材、混凝土与织物奠定了整体空间的平衡基调,灵活的布局和雅致的材质运用则营造出亲切温馨的氛围,确保了工作效率与舒适体验能够和谐共存。        

  • Muen沐恩 / 设计师

    2025年11月28日 07:18:55

    + 关注
    #办公智造#

    ...        

  • 敏颜 / 设计师

    2025年11月28日 07:17:24

    + 关注
    #办公智造#

    曦望办公空间        

  • 饶阳 / 设计师

    2025年11月24日 18:32:04

    + 关注
    #办公智造#

    室内        

  • 饶阳 / 设计师

    2025年11月24日 18:27:16

    + 关注
    #办公智造#

    户外        

  • 朱铢来了 / 设计师

    2025年11月24日 18:17:46

    + 关注
    #办公智造#

    办公空间落地实景        

发布话题

公开