当前位置:首页 > 户型图分析

#易住美宅#

阅读 72355 | 粉丝 72355

  • Hi 是我呀 / 设计师

    2025年04月06日 22:24:03

    + 关注
    #易住美宅#

    极简模式        

  • 曹杨Young / 设计师

    2025年04月05日 15:17:55

    + 关注
    #易住美宅#

    提前预留灯槽位        

  • 蓦兰 / 设计师

    2025年03月31日 06:22:07

    + 关注
    #易住美宅#

    [一]款式
    悬浮电视墙宽度2.9m,高度2.4m,内嵌电视75寸
    [二]款式
    宽度3.5m,电视左右留壁龛,悬浮电视墙左侧和定制柜衔接
    [三]款式
    电视墙宽度2.78m,转角宽度0.5m,弧形半径0.479m
    [四]款式
    宽度4m,内嵌电视尺寸1.9m×1.13m
    [五]款式
    电视墙宽度3.74m,电视右侧开放格0.4m宽
    [六]款式
    电视墙宽度4.3m,隐形门宽度0.77m
    Ps:适合电视背景墙有门的宝子抄作业!
    [七]款式
    宽度4.3m,电视背景墙底层做格栅板造型
    [八]款式
    宽度3.39m,电视机内嵌尺寸1.7m×0.99m,刚好放进电视
    [九]款式
    宽度3.76m,内嵌85寸电视,左右留黑空尺寸0.4m
    悬浮电视背景墙想要不翻车一定要注意着3点!!
    1,电视墙侧面错层很关键,错层间距控制在7-8cm,厚度保持在15cm是验证效果佳的,这样层次感一下就出来了
    2,依据精装房层高以及电视背景墙长度来设计尺寸,电视需要居中安装,并且注意上下左右尺寸要平均,电视背景墙看起来才更和谐
    Ps:千万不要做成上高下矮,或者两边留白面积不同的样式,不然会显得很不协调
    3,悬浮电视墙一定要嵌入灯带,暖色调灯带开灯后见光不见灯,营造出若有若无的悬浮感
    4,木工阶段提前选好电视,确定内嵌开孔尺寸,开孔尺寸要大于电视尺寸,内嵌厚度也要计算电视厚度+支架厚度,否则电视凸出来就翻车了
    5,水电阶段提前预埋50管,可以把电视线、路由器线隐藏起来        

  • 江北梅郎 / 设计师

    2025年03月29日 07:19:28

    + 关注
    #易住美宅#

    电视背景墙        

  • 王倩 / 设计师

    2025年03月25日 21:37:58

    + 关注
    #易住美宅#

    品味...        

  • 猪猪侠 / 设计师

    2025年03月25日 21:31:53

    + 关注
    #易住美宅#

    轻奢吊顶        

  • 魏馨琪 / 设计师

    2025年03月19日 08:12:59

    + 关注
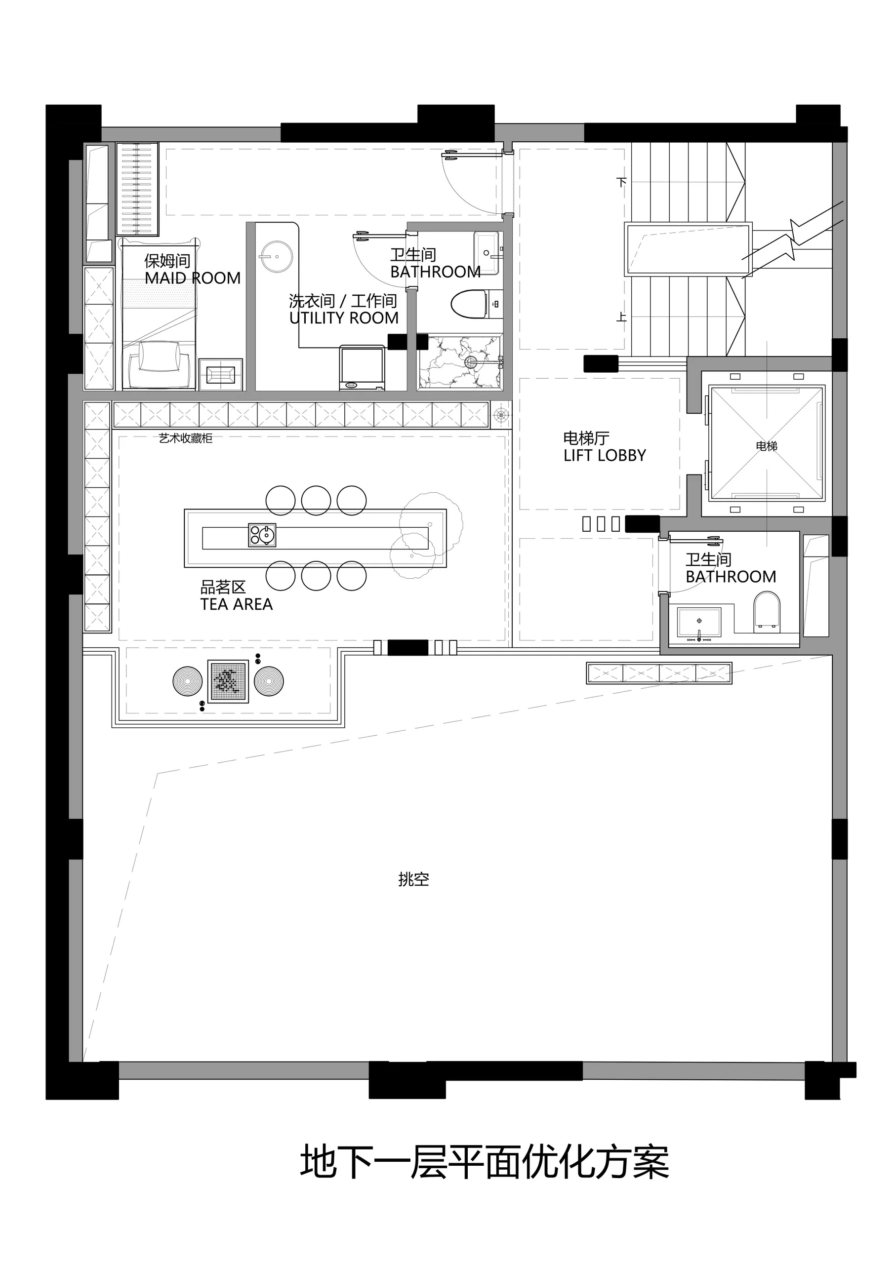
    #易住美宅#

    大平层平面布局图        

  • 魏馨琪 / 设计师

    2025年03月19日 08:11:41

    + 关注
    #易住美宅#

    剖面图        

发布话题

公开