当前位置:首页 > 户型图分析

#易筑展陈#

阅读 50758 | 粉丝 50758

  • Tony@视觉设计 / 设计师

    2023年04月16日 15:01:46

    + 关注
    #易筑展陈#

    展厅实景        

  • 艳子@视觉设计 / 设计师

    2023年04月10日 08:49:19

    + 关注
    #易筑展陈#

    小米博物馆        

  • Tony@视觉设计 / 设计师

    2023年04月09日 07:24:01

    + 关注
    #易筑展陈#

    展厅施工现场        

  • Tony@视觉设计 / 设计师

    2023年04月09日 07:17:11

    + 关注
    #易筑展陈#

    空间意境——“展现自然生长的状态”
    空间意境:展厅的空间设计试图展现生命的内涵,以一种流动的空间形态展现自然生长的状态,向参观者诠释生命自我生长的力量感,更展现出企业积极健康的形象以及企业文化的创新包容性。展厅整体色调上以白色为主结合浅色木纹带来的温润感,使空间既具有科技感又不失亲和力,启发受众对未来养老生活的美好遐想。        

  • Tony@视觉设计 / 设计师

    2023年04月09日 07:14:32

    + 关注
    #易筑展陈#

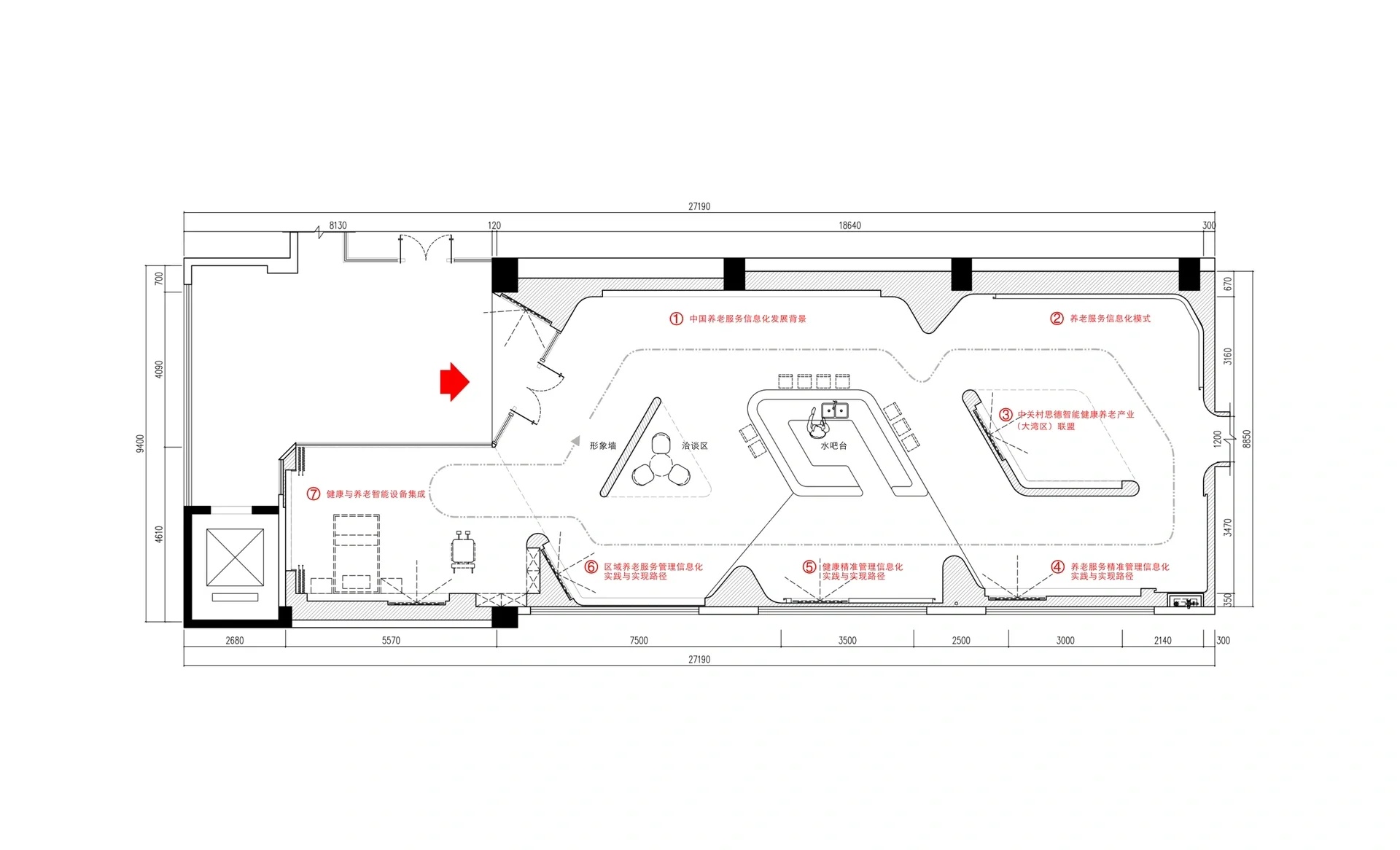
    空间布局:展厅围绕养老服务精准管理和精准健康管理的理念,多方位展示养老服务信息化的背景、模式和前沿应用技术。展现机构养老、社区和居家养老、旅居康养、区域养老服务管理的信息化实现路径,以及通过数据和信息化驱动养老服务质量提升的解决方案。在展示区域板块划分上以水平线旋转相同角度切割空间,使狭长方正的空间得以不同方向延伸,以曲线弱化表面菱角,形成一个趣味的不规则形流动空间,增加空间律动感。        

  • Tony@视觉设计 / 设计师

    2023年04月09日 07:12:19

    + 关注
    #易筑展陈#

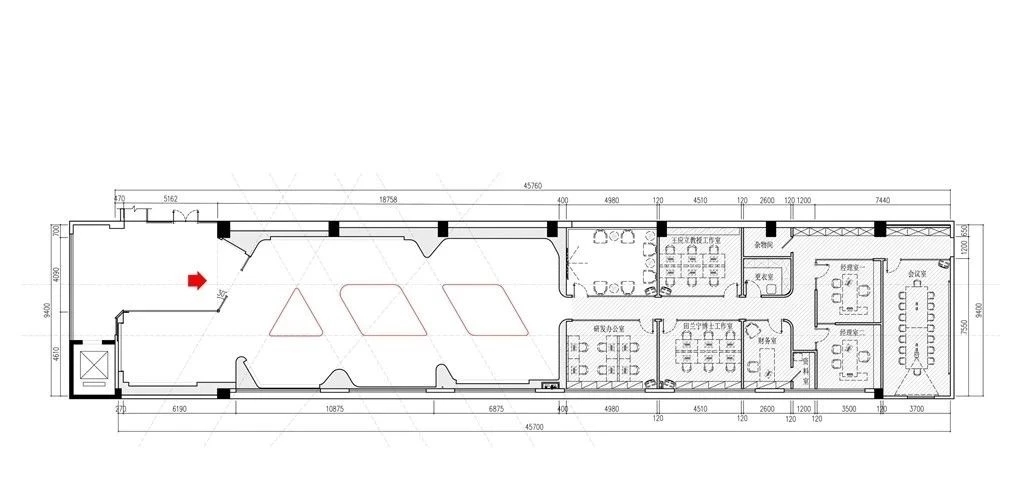
    平面与立面部分图纸        

  • 豆豆@视觉设计 / 设计师

    2023年04月06日 21:36:53

    + 关注
    #易筑展陈#

    不论是政府机关,还是企业集团,或者科研中心,任何一个单位要布置一个让人眼前一亮或者体现其核心精神的展厅,就要先选择适合的展览展示设计公司。丰富的展厅设计技巧和布展经验能够用最合理的形式将企事业单位的特质、产品的特点以及人文精神进行有机结合从而形成良好的展览展示。那么原筑在展厅设计中有哪些常用的设计技巧呢?
    (一)突出主题
    在进行展厅设计的时候通常会突出一个焦点,从而起到突出主题的效果。那么如何选择这个焦点呢?设计团队在设计中往往会将展厅所蕴含的地域文化特色融入整个展厅设计中,并围绕展厅的特点将概念性的理念进行具象化描述,达到有点有面,主题突出的效果。
    (二)层次分明
    展示空间的结构要层次分明,设计要有主题、有意义、有目的,利用各种结构关系,达到展陈空间有秩序、有规律、有逻辑的展示效果。在此基础上,展厅设计的整体美感与实用功能的统一,需要将展厅各个区域进行合理的规划和布置。
    所以资深的展览展示设计公司通常会利用声光、色彩等元素来增加展厅的层次感,并且会使用甲方单位标志色为主基调,然后再根据不同的功能区进行色彩明度的增减实现展厅层次分明、整体协调。
    (三)大气简洁
    展厅的设计风格要大气、简洁。一般展厅主要以展示产品为主,所以起到介绍作用的文字、讲解要简单凝练。
    在设计中除了使用部分文字突出的效果外,还会使用简洁、明了的介绍来进行辅助展示,而尽量避免冗余的长篇大论。从展厅风格上看,整体风格同调、视觉效果好、内观外观协调。
    在展厅设计中,几种设计方法至关重要。常用的展示设计的方法分为如下几种:结构法、组合法、叙述法、解构法、虚拟法以及移植法等。除此之外,还有展厅布局的设计方法、展厅装饰的设计技巧。        

  • 安迪@视觉设计 / 设计师

    2023年04月06日 17:17:13

    + 关注
    #易筑展陈#

    展厅设计图纸        

发布话题

公开