当前位置:首页 > 设计圈
  • 木子李 / 设计师

    2025-03-21 22:00


    #办公智造#

    ♡   在现代简约风格的基础上,软装设计拥有更广阔的创意与表达空间。各种款式、各种风格、色系都可以搭配。可以根据企业的定位以及日常办公的需求进行选择
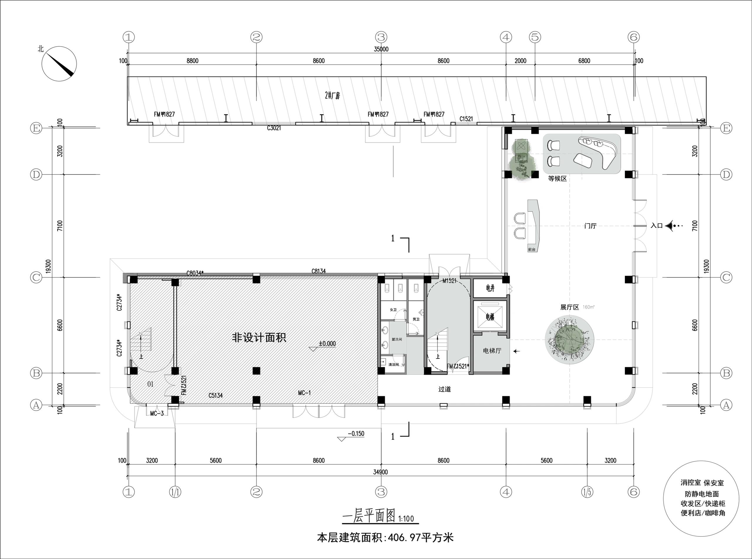
    ♡  前台区域采用绿植,金属色小圆桌,橙色沙发这些亮色来点缀,打破灰白色带来的单调感,使空间更具活力。
    ♡    前台与工区之间,用黑色的铝方通隔断,空间效果真的很惊艳,通透明亮不沉闷,简约而不简单的秘诀就在这神奇的隔断上,前台白色墙面上 ,嵌入简单的黑色线条,增加空间层次,提升空间品质感
    ♡   开放办公区的设计允许多种工作模式的灵活切换。通过利用玻璃以及铝方通隔断,既保留了足够的个人工作空间, 又提供了会议和协作的区域。        

  • 木子李 / 设计师

    2025-03-21 21:58


    #办公智造#

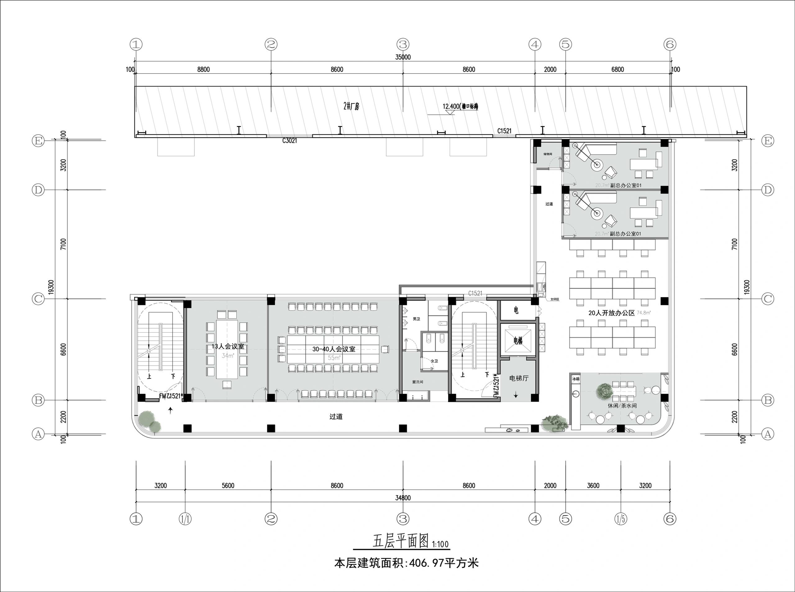
    总经理办公室采用白色书柜,以及白色吊顶,整齐嵌入条形灯带,让整个空间显得更宽敞明亮
    董事长办公室的软装和整个办公室风格保持统一。皮质的座椅以及深色系 的沙发,更显格调与品质        


  • #办公智造#

    1200平方办公会所        

  • 戴宁 / 设计师

    2025-03-21 20:38


    #办公智造#

    办公落地实景        


  • #办公智造#

    海明晖电子办公空间        

  • 张曲峰 / 设计师

    2025-03-21 20:33


    #办公智造#

    蓝深科技办公空间        


  • #办公智造#

    办公室墙面整体采用原木色木饰面装饰,具有温暖的质感,能够中和办公空间可能带来的冷漠感,营造出一种亲切、舒适的氛围。工作区分布合理,电脑桌椅整齐排列,为员工提供了充足的工作空间。地面采用了灰色水泥自流平,具有现代感,同时也易于清洁和维护。大量使用了筒灯和灯带,提供了充足的基础照明,保证了办公区域的亮度需求。        


  • #办公智造#

    休闲区空间布局紧凑且功能明确。中部摆放着圆形餐桌与几把椅子,形成用餐、交流区域;还配备了冰箱、饮水机和微波炉等电器,方便员工使用。另一侧的造景,为空间增添生机与美感。选用多种绿植,有高大的植株撑起竖向空间,也有低矮的蕨类、草本植物铺陈地面,形成高低错落的层次感。
    会议室从墙面到长桌都采用原木元素和自然色调,温润的质感氤氲整个空间,营造出温馨舒适的工作氛围。原木材质的选择可以提升会议室的整体品质,还能展现公司的品牌形象和价值观。
    在设计董事长办公室的时候,无论是在空间布局、颜色搭配还是在软装上,都要突出其干练沉稳、大气风范的形象与气质。玻璃展示柜内陈列的工艺品、茶具、地球仪等物品和地上的健腹轮,不仅起到装饰作用,还能彰显董事长的文化品味与兴趣爱好。顶面有根横梁,梁上做了木饰面,与吊顶的衔接较为自然,没有破坏整体的视觉效果,既保证了空间的功能性,又兼顾了美观性。        

发直播

公开