当前位置:首页 > 户型图分析

#办公智造#

阅读 960144 | 粉丝 960144

  • Joan 王怡琼 / 设计师

    2022年11月24日 13:57:07

    + 关注
    #办公智造#

    在这个空间,设计师以电竞行业为情景主题,结合行业气质,巧用经典的黑白灰色调,营造极简而富有层次、质感的办公氛围。        

  • 俊泽 / 设计师

    2022年11月24日 13:41:01

    + 关注
    #办公智造#

    办公室实景图…        

  • Diana / 设计师

    2022年11月24日 13:39:41

    + 关注
    #办公智造#

    整个空间非常讲究光影的构成,利用自然光不停地变化,使得电梯间、大堂接待区和水吧区的空间和光影相互作用下,光线营造出通透、柔和的感官效果,取纳自然所赋予的安静与宁静。        

  • 魏馨琪 / 设计师

    2022年11月24日 13:36:50

    + 关注
    #办公智造#

     一个集办公与会议功能的集团董事会会议室设计,通透的落地窗户给人一种自然与温暖的感官效果,营造一个轻松氛围的商策空间。        

  • 魏馨琪 / 设计师

    2022年11月24日 13:33:25

    + 关注
    #办公智造#

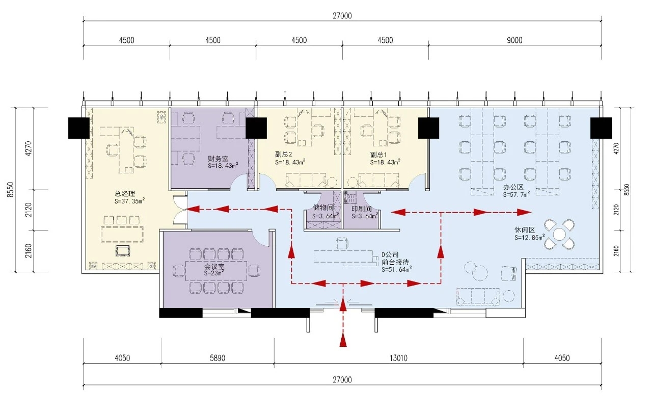
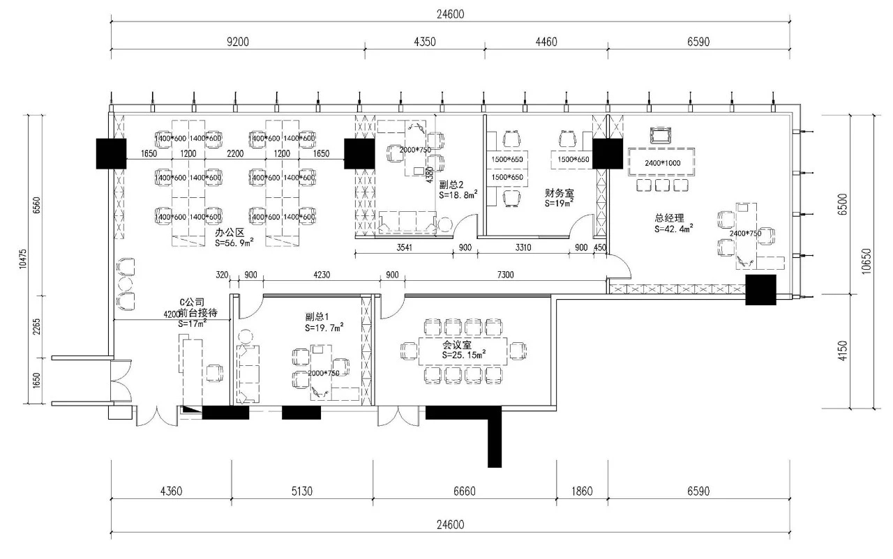
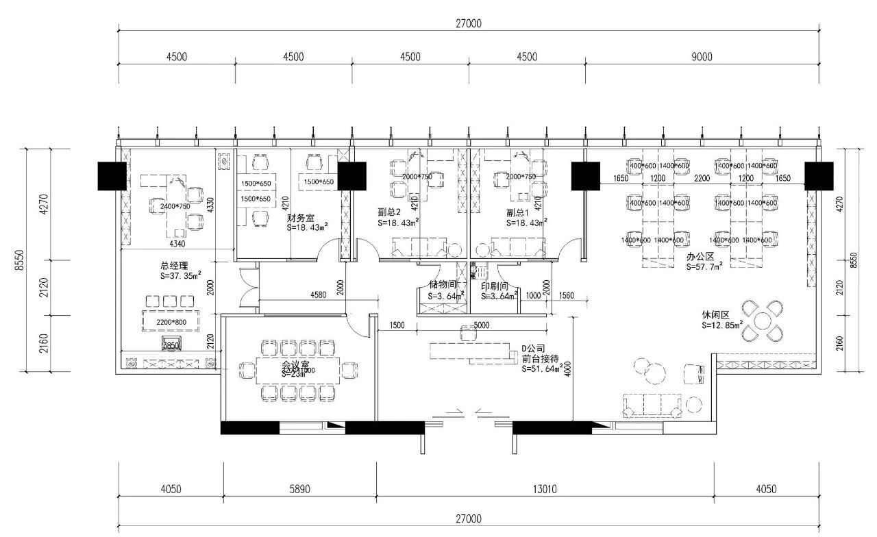
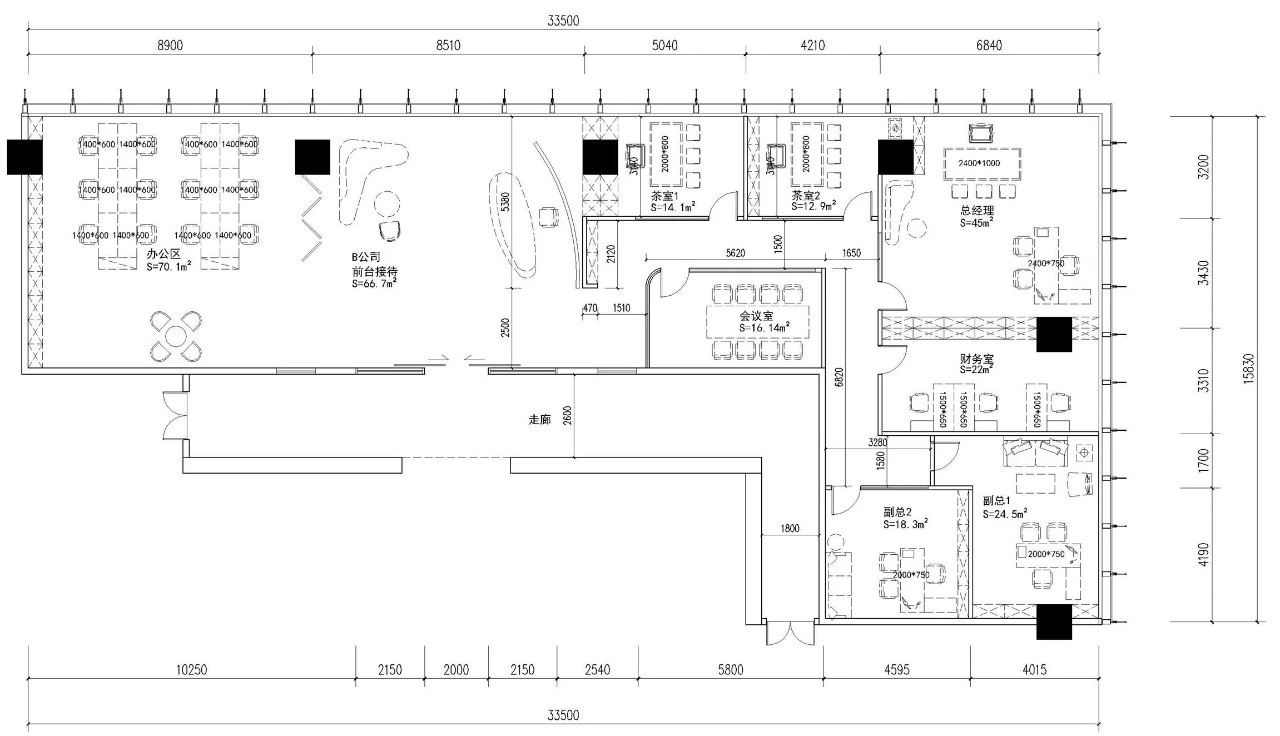
    空间像是一种状态,所有物件都是时间线上的一瞬。为了确保办公空间的充分利用性,整个空间划分为前台、办公区及董事长办公室等空间。各种玻璃的隔断的使用,使办公空间通透明亮,同时外部光源可以穿过玻璃投射进来,让整个空间沐浴在宁静而温暖的阳光之中,员工和客户进入时便可感受明亮而舒适的氛围。        

  • 魏馨琪 / 设计师

    2022年11月24日 13:31:13

    + 关注
    #办公智造#

    空间功能恰到好处,风格一致惯穿,大面的透明玻璃也让每个人在繁忙工作中都可以享受到窗外的阳光,得到些许的静谧,将共享理念发挥到极致。        

    筑先生

  • 筑先生 / 客服

    2022年11月24日 13:27:15

    + 关注
    #办公智造# 前台空间结合企业属性及品牌印象,空间提取品牌基调,以白色打造时空体验感,当员工进入办公场所,能感受到企业文化所带来的感受。

  • 无忌 / 设计师

    2022年11月24日 13:16:06

    + 关注
    #办公智造#

    铺地线状纹理由近及远的宽度渐变,加强了空间进深,从视觉上对访客形成了引导作用。从地板到墙面、天花,不同方向的线形交织重现,形成整个内部空间的主旋律,并潜移默化的深入到小空间中去。        

发布话题

公开