当前位置:首页 > 户型图分析

#办公智造#

阅读 958166 | 粉丝 958166

  • 无忌 / 设计师

    2022年11月19日 16:44:12

    + 关注
    #办公智造#

    前程无忧办公室(1)        

  • 无忌 / 设计师

    2022年11月19日 16:43:10

    + 关注
    #办公智造#

    前程无忧办公室(2)        

  • 大鹏 / 设计师

    2022年11月19日 16:34:08

    + 关注
    #办公智造#

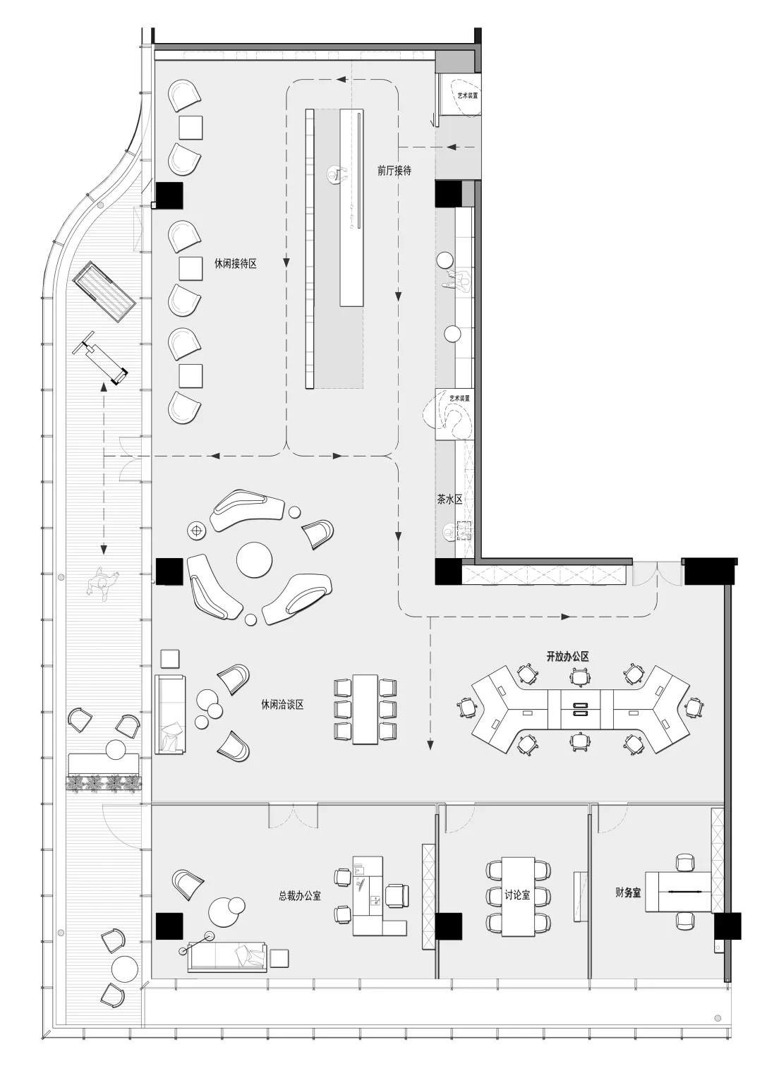
    我们在前厅设计中没有采用过多复杂的造型,只有简洁的线条与体块的搭配;整体色调以白黑色为主,搭配主LOGO的红色,省略了繁复的装饰手法,一切回归到点线面的基础处理,给人干练、严谨的感觉。也体现了律所公平、公开、公正的理念。        

  • 大鹏 / 设计师

    2022年11月19日 16:32:05

    + 关注
    #办公智造#

    休闲茶水区延续现代简约风范,选材和用色与外部空间也有关联,灰白基调打底,红色点缀,让员工带着积极乐观而热情的情绪,兼顾办公、待客、小型讨论的多样化用途。
    色调淡雅地毯,配合温暖的木质家具。突出了办公室的亲切,和睦,轻松的氛围。整个空间稳重大方,具有质感的胡桃木色系材料的运用延续了大方庄重的时尚感。        

  • / 设计师

    2022年11月19日 16:16:33

    + 关注
    #办公智造#

    西安中投融城地产企业总部(1)        

  • / 设计师

    2022年11月19日 16:14:39

    + 关注
    #办公智造#

    西安中投融城地产企业总部(2)        

  • 李明 / 设计师

    2022年11月19日 16:05:46

    + 关注
    #办公智造#

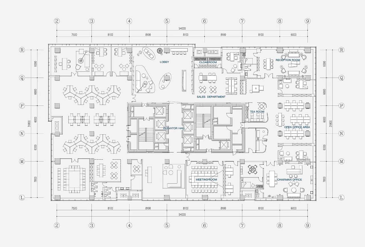
    设计希望通过场地的打造,让空间更加舒适、灵动、便捷,良好的办公氛围,对于工作效率及人员情绪都有着积极的影响。        

  • 李明 / 设计师

    2022年11月19日 16:04:30

    + 关注
    #办公智造#

    设计打破传统办公色彩,接待台采取亮色作为空间主色调,突出新时代氛围的同时,感受独特的办公体验与多元化的社交生活场景        

发布话题

公开