当前位置:首页 > 户型图分析

#办公智造#

阅读 958164 | 粉丝 958164

  • Camille yu / 设计师

    2022年11月19日 15:57:43

    + 关注
    #办公智造#

    通过表格系统性地整理、分析办公空间中不同人群的行为活动及工作状况数据,得出员工的本质需求,通过完整理性的表格和数据分析制定出办公空间的规划策略。根据数据和矩形结构的场地空间情况,设计师以楼板中心为发散点,作出「十字交叉」的结构组织规划,统筹主要交通空间,让其成为连接一层各个功能空间的枢纽地带。因此,横向置入使用频率最高的会议空间模块,纵向为接待台及其他次主要功能分区模块,不同区位的办公人员可以灵活快捷地穿梭在连接路径上,让员工以最短的动线解决工作与诉求实现高效办公和协作。        

  • Camille yu / 设计师

    2022年11月19日 15:54:31

    + 关注
    #办公智造#

    中型会议室同样使用品牌色作为墙体色,活泼的红色不但能够刺激大脑提高员工对会议的参与度,同时也能减少空间使用时间,实现会议空间的高效利用。为群体讨论创造了机会与条件同时,设计师配置可书写的白板及视讯系统,使创意表达的可视化更方便,让空间成为创新的工具。企业文化内容也可以在干净的墙体上进行平铺展现。        

  • Camille yu / 设计师

    2022年11月19日 15:52:08

    + 关注
    #办公智造#

    建筑与自然之间的有趣的边界称之为灰空间,休闲用餐区正是这样的模糊边界空间。空间中心植入鲜活的绿植,以玻璃围合,浸染在虚实交错的绿植之中,瞬间多了一分跳脱活泼之美。此空间让员工舒适地思考、放松与创造,提升工作品质与员工对工作环境的满意度。        

  • Camille yu / 设计师

    2022年11月19日 15:50:18

    + 关注
    #办公智造#

    区别于常规办公区中用到的红色,自带艺术气息的克莱因蓝,为整个空间预留了想象的空间,从艺术家安尼施·卡普尔的作品获得灵感启发,置入的蓝色圆盘犹如空间沉稳静谧的灵魂,在总裁繁忙的会议中打开了放空、思考的绝佳契机。越过木质栅格,收获一片明净而开阔的办公格局。柔和的木质墙体,围合出放轻松气氛;简洁利落的线条组织,节奏明朗,勾勒出空间低调而谦和的气质。        

  • Camille yu / 设计师

    2022年11月19日 15:48:02

    + 关注
    #办公智造#

    年迈的副董事长坐享的办公空间,更彰显沉稳气质。空间以木皮、皮革、金属的拼接组合构建出深浅有度、层次分明的感官体验。艺术品的置入,渲染出空间的份量感之余,构成视线的引导和虚化的空间分割节点。此起彼伏的空间节奏,构成一幅精致耐看的平面,适宜使用者长时间逗留。        

  • 毛均峰 / 设计师

    2022年11月19日 15:31:15

    + 关注
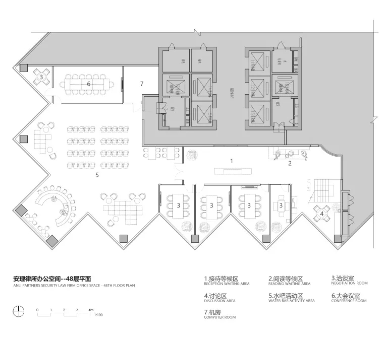
    #办公智造# 【办公空间】安理律师事务所深圳荣超经贸中心办公室

  • 毛均峰 / 设计师

    2022年11月19日 15:29:54

    + 关注
    #办公智造# 【办公空间】安理律师事务所深圳荣超经贸中心办公室

  • 刘君雅 / 设计师

    2022年11月19日 15:22:07

    + 关注
    #办公智造#

    透过落地玻璃窗,将云卷云舒尽收室内,黑白灰色调加上大面积的自然木纹奠定经典干净的调性。简洁的颜色总是给人无尽的想象力,适度的放空思维有利于身心的调理;钴蓝色亚克力装饰柜与光影结合,使休闲空间轻盈通透。        

发布话题

公开