当前位置:首页 > 户型图分析

#办公智造#

阅读 953877 | 粉丝 953877

  • 魏馨琪 / 设计师

    2022年10月25日 16:20:15

    + 关注
    #办公智造#

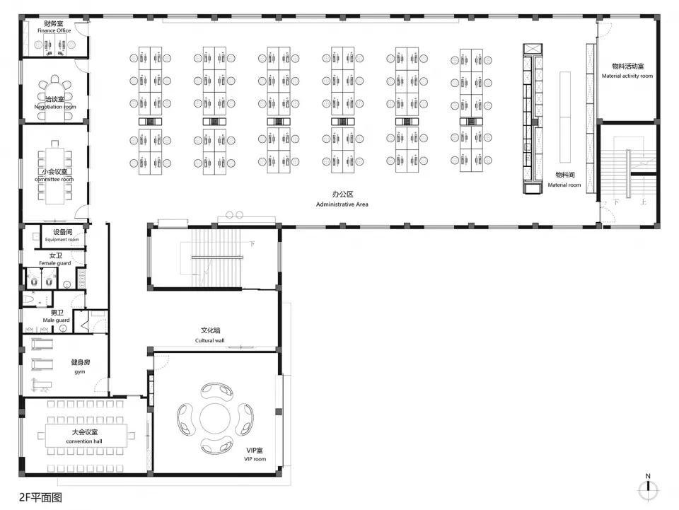
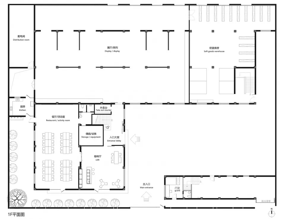
    建筑结构并没有太多的改造,但空间形象与感受确是彻底的变化。办公空间主要分布在L形建筑的两个楼层,专门为员工及客户设置了生活艺术展厅,VIP洽谈室,酒吧区,健身房,多功能会议室,多功能餐厅,休闲娱乐空间。此外,在建筑的顶层还建造了一个屋顶花园,设计师在这里体验“城市农夫”的快乐,为员工创造了强烈的归属感,将“工作场所”转变成舒适的“生活空间”。        

  • 魏馨琪 / 设计师

    2022年10月25日 16:18:47

    + 关注
    #办公智造#

    办公空间
    黑白调的纯粹办公区域开敞且无距离感。
    在这次设计中,办公空间打破了传统意义上的封闭式秩序感,创造一个自由办公的环境,设计师都在肉眼可见的范围内,彼此沟通,共享资源,整个工作区域都为开放式的无遮挡状态,所有的行为规范及秩序性都在大家的自我约束中产生,构成积极化的工作环境。二层吊顶的设计巧妙地隐藏了空调、排水管、电线等走线,利用原结构表现出结构的秩序。        

  • 夏毅 / 设计师

    2022年10月25日 14:58:44

    + 关注
    #办公智造#

    振业集团办公室效果图…        

  • 小海 / 设计师

    2022年10月25日 14:55:20

    + 关注
    #办公智造#

    办公室深色玻璃的使用…        

  • 阿峰 / 设计师

    2022年10月25日 14:01:31

    + 关注
    #办公智造#

    办公室实景图…        

  • 李明 / 设计师

    2022年10月25日 13:49:46

    + 关注
    #办公智造#

    大道至简,极致简单,又不乏点睛之笔。从设计的空间维度来讲,咸淡相宜的中国元素——竹子、红砖,标注了空间的地域性;从时间维度来讲,现代建筑材料——水泥、玻璃,又赋予了作品的现代性。        

  • 刘君雅 / 设计师

    2022年10月25日 13:43:11

    + 关注
    #办公智造#

    办公空间采用开放范式下的办公模式,以纯粹而例外的设计呈现。它演变成了一个共享之地,一个创新的未来办公体验式场所。这是一个共融共通的自由之地,空间开放,可以扩展,替代以往的封闭办公环境。不同的空间相互组合,不再服从于某种特定的空间结构。员工在这里能够与空间互动,建设属于自己的办公空间,使其生长,成形。
    空间的质量,在于它支持各种各样的交流互动。传统方格网状排列的办公空间,固化限定行为,线条僵硬地把人的活动吸纳到一个封闭的实体里。一个有能力吸收办公行为中 各种变化需求并灵活做出调整的生动多样的空间氛围:有弹性,自发应用,具备延展性与适应力。不仅解决工作空间的共享,而且重塑在此情景中的人际关系与社交网络。        

  • 刘君雅 / 设计师

    2022年10月25日 13:41:37

    + 关注
    #办公智造#

    平行并置、垂直相交的木块层叠起伏,交错咬合,构成大小不一切口与不同的嵌入层次。木块内外可以自由置换,相互衔接,横向延展生成墙体、天花、前台、休息凳、办公桌、书柜、展示柜等,形成不断扩张的交流系统,消解了物质拘谨的功能边界。        

发布话题

公开