当前位置:首页 > 户型图分析

#办公智造#

阅读 953875 | 粉丝 953875

  • 俊泽 / 设计师

    2022年10月25日 13:37:33

    + 关注
    #办公智造#

    办公室实景图…        

  • 7Roue. / 设计师

    2022年10月25日 13:33:46

    + 关注
    #办公智造#

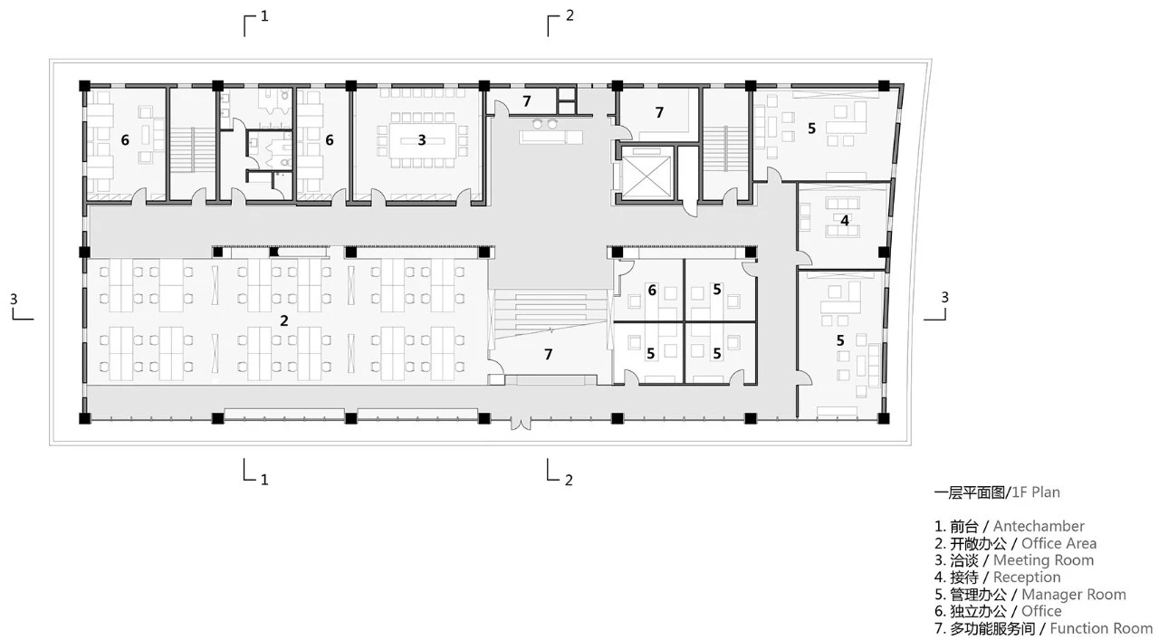
    作为独栋式办公楼顶层空间,原建筑格局为传统中廊式办公模式,建筑层高介于5米至6米之间,四面墙面采用传统竖条窗设计。希望除了改善建筑的采光、通风等物理性能之外能创造一个带有开敞通透、具有时代感、面向未来的趣味性办公场所。        

  • 7Roue. / 设计师

    2022年10月25日 13:32:06

    + 关注
    #办公智造#

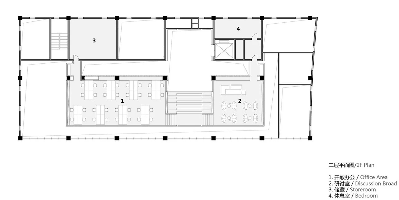
    木质十字中还隐藏了一个滑梯,二楼办公的人员可以通过滑梯快捷的到达底层。穿过滑梯时,两侧的格栅所带来的朦胧光影变化和暧昧的视线联系创造出了全新的体验。        

  • 无忌 / 设计师

    2022年10月25日 13:20:25

    + 关注
    #办公智造#

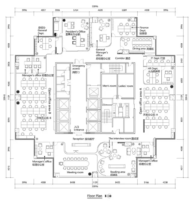
    这是一处位于建筑顶层的办公空间,拥有820平方米的室内面积以及6米的超高层高。设计任务是建造一个涵盖多部门、多功能,年轻时尚的办公环境。该项目最吸引我们的是6米的建筑层高,决定保留原建筑裸露天花是本案设计的开始。
    源于建筑结构的特有性,平面布局中我们以建筑塔楼为中心,设置了游走全公司最短距离的回形通道,简单的动线使空间利用率最大化,更有利于各部门的协同工作。回形走道作为主要通道的同时,部分墙面还展示了企业产品所用的皮质物料。
    画卷式的展示手法不仅方便更换新皮料,同时有利于观者阅读。走道中看似随意安装的装饰画,配合定制的大型展示架,使观者犹如置身于展馆之中。引领拜访者一圈一圈来回游走也是本次设计的目的之一,让观者感受着沙驰企业文化的同时,也可以停下来欣赏材料的本真之美。        

  • 无忌 / 设计师

    2022年10月25日 13:18:25

    + 关注
    #办公智造#

     踏入内凹流线形前厅,天花、墙面、地面、信息台形成的多面弧线纷纷引导着空间的拜访者,各功能区弧形造型墙的串联也是由此处开始。空间以白色为基调,同时呈现平整,树皮纹,方格纹,斜拼砖纹四种不同的质感。白色与木色的划分丰富了空间的层次感,黄色与蓝色的点缀则增加了空间的生机和活力。走进阅读区,映入眼帘的是一个亮敞的通透空间。沐浴着穿梭进来的阳光,捧上一本书,坐上舒适的沙发,阅读在这一刻成了最美好的享受。
    面试区和阅读区共享一堵弧形玻璃墙,两个功能区在视觉上得以扩大,同时也满足了隔音的需求。除特定部门需要独立空间外,剩余部门都设置在开放办公区,办公桌边柜上的立体字便是各部门划分的标志。在该区域,设计师打破了原本沉闷的工作环境,结合超高层高、裸露的天花留白和工业感的吊灯,重新创造一个明亮开阔的空间,为员工营造一个愉悦的工作环境。                

  • 易壮壮 / 设计师

    2022年10月25日 12:59:32

    + 关注
    #办公智造#

    施工进度照片…        

  • 易壮壮 / 设计师

    2022年10月25日 12:57:47

    + 关注
    #办公智造#

    临近完工交付照片…        

  • 张小葵 / 设计师

    2022年10月25日 12:39:34

    + 关注
    #办公智造#

    工作室设计…        

发布话题

公开