当前位置:首页 > 户型图分析

#办公智造#

阅读 952792 | 粉丝 952792

  • Camille yu / 设计师

    2022年10月21日 07:00:19

    + 关注
    #办公智造#

    ADP-Architects在办公室体现了公司的核心价值,通过热情、专业的外观,以公司的里程碑和使命为特色,创造了一个加强客户信任的空间。在确保高质量工作站提高生产力的同时,ADP在一个多功能区域内设计了一个客户服务柜台,可以灵活地改造为接待客户或举办公司的活动。        

  • 庆东 / 设计师

    2022年10月20日 22:23:49

    + 关注
    #办公智造#

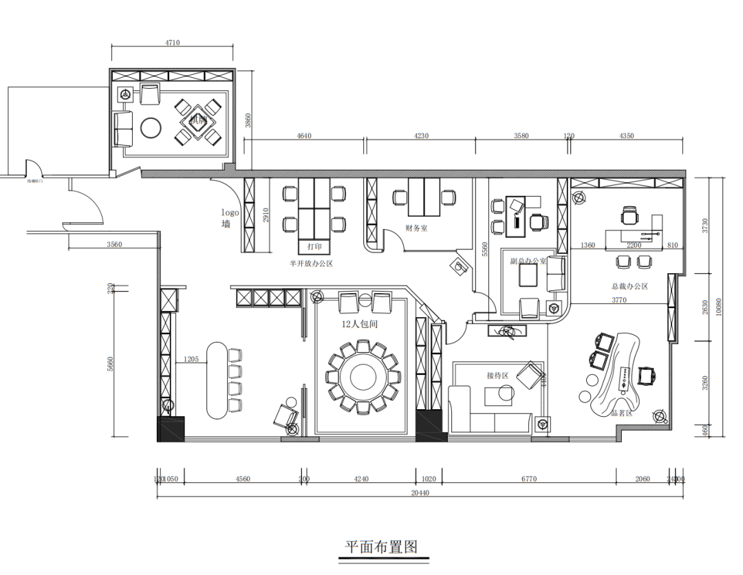
    本次项主要围绕“商务办公+商务接待”来开展设计,融入了当下热门的现代极简风格,一改传统的商务办公手法,把复杂商务风格简化,再配上符合现代审美的元素和新颖的设计手法,给予使用者一个全新的办公体验。
    功能布局上我们并没有采用开放式,而是把功能区域以半包围形式交错布局,一方面是保证空间的隐蔽性,避免接待影响办公效率,一方面是改变传统方正布局的设计手法,增加空间使用的趣味性。
    225平方虽然不大,但是空间中涵盖了一个总裁办公区、一个品茶区、一个休息区、一个副总办公区、一个财务室、4个工位的办公区、水吧区、棋牌室和用餐包间等9个功能区域,可以说空间布局没有一点是浪费的地方。        

  • Diana / 设计师

    2022年10月20日 22:20:30

    + 关注
    #办公智造#

    总经理办公室设计…        

  • Camille yu / 设计师

    2022年10月20日 22:17:55

    + 关注
    #办公智造#

    办公室效果图…        

  • 大鹏 / 设计师

    2022年10月20日 22:02:07

    + 关注
    #办公智造#

    易筑毕业照系列…        

  • 小海 / 设计师

    2022年10月20日 18:06:53

    + 关注
    #办公智造#

    运动红办公室设计…        

  • 小海 / 设计师

    2022年10月20日 18:05:37

    + 关注
    #办公智造#

    科技蓝办公室设计…        

  • 饶阳 / 设计师

    2022年10月20日 17:55:33

    + 关注
    #办公智造#

    现代风格办公大楼设计…        

发布话题

公开