装修案例
灵感美图
找设计
找工长
看工地
记住密码
我已阅读并同意注册协议
发布话题
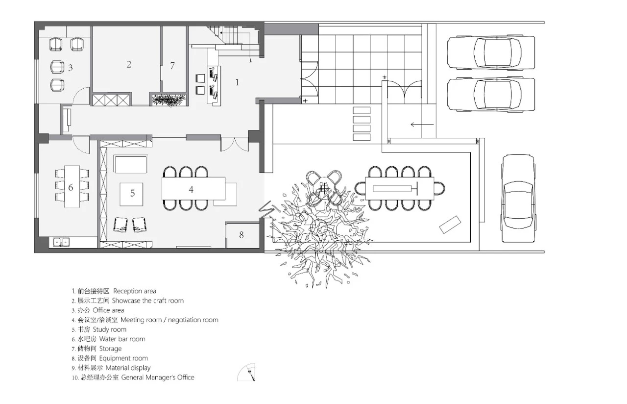
别人家办公室 | 026
FKD办公室效果图
FKD办公室
两套去年完工照
这个会议室设计还是比较满意的
中交一航局生态公司办公室(1)
中交一航局生态公司办公室(2)