当前位置:首页 > 户型图分析

#办公智造#

阅读 945297 | 粉丝 945297

  • 王倩 / 设计师

    2022年09月08日 11:00:28

    + 关注
    #办公智造#

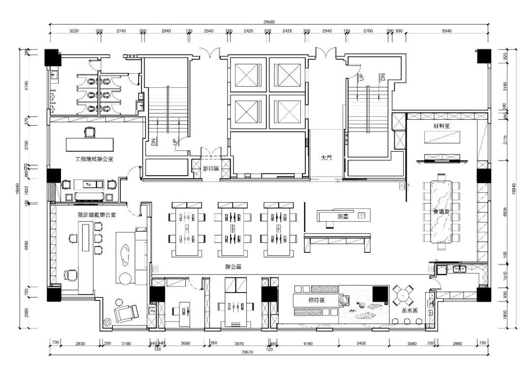
    专注控股的核心目标是为公司及其工作人员打造一个既振奋人心,又彰显企业在专业领域地位的办公空间。前台造型以半椭圆截面,构造无棱,弧曲圆浑之势,将动感的“流线”引入静止的空间,墙面造型以简洁流畅的线条蔓延,一种无垠广阔的空间感悄然生发。用简洁的表现形式来满足人们对办公空间环境感性的、本能的和理性的需求,将空间构成与灯光应用相互结合,极简的设计语言和家具所营造的氛围,打造出一个具有个性又内敛的办公环境。        

  • 魏馨琪 / 设计师

    2022年09月08日 10:17:26

    + 关注
    #办公智造#

    易筑案例 | 赛柏特办公室实景图        

  • 毛均峰 / 设计师

    2022年09月08日 09:01:12

    + 关注
    #办公智造#

    出图        

  • 7Roue. / 设计师

    2022年09月08日 06:01:29

    + 关注
    #办公智造#

    作为一家设计公司的办公室,它需要一个开放、灵活,能激发更多创造力的空间,我们希望整个空间是流动通透的,可以相互渗透延伸的趣味办公环境。设计运用简单的材料和语言强调极简概念。空间上摒弃了繁冗、聒噪的装饰铺陈,白色墙面与天花、黑色的不锈钢、灰色地砖,黑白灰的色彩搭配与材质选择,让空间静默而内敛,空间变得清爽大方。线性光的使用强调了空间的结构,同时带来一种穿越的未来感,给空间以蓄势待发的张力和延伸感。        

  • 无忌 / 设计师

    2022年09月07日 19:34:56

    + 关注
    #办公智造#

    新东方办公室        

  • 无忌 / 设计师

    2022年09月07日 19:27:49

    + 关注
    #办公智造#

    新东方办公室        

  • 大鹏 / 设计师

    2022年09月07日 17:41:33

    + 关注
    #办公智造#

    效果图        

  • 文成 / 设计师

    2022年09月07日 11:15:45

    + 关注
    #办公智造#

    “办公模式”、“培训模式”、“玩乐模式”灵活切换,这里既支持个人办公,也是团队协作的绝佳场所;而需要时,它又摇身一变成为气氛热烈的Party举办地,供员工欢庆每一高光时刻。所有的灯光均可调节,根据不同场景制造出恰如其分的氛围感。        

发布话题

公开