当前位置:首页 > 户型图分析

#办公智造#

阅读 945220 | 粉丝 945220

  • 小海 / 设计师

    2022年09月05日 22:00:48

    + 关注
    #办公智造#

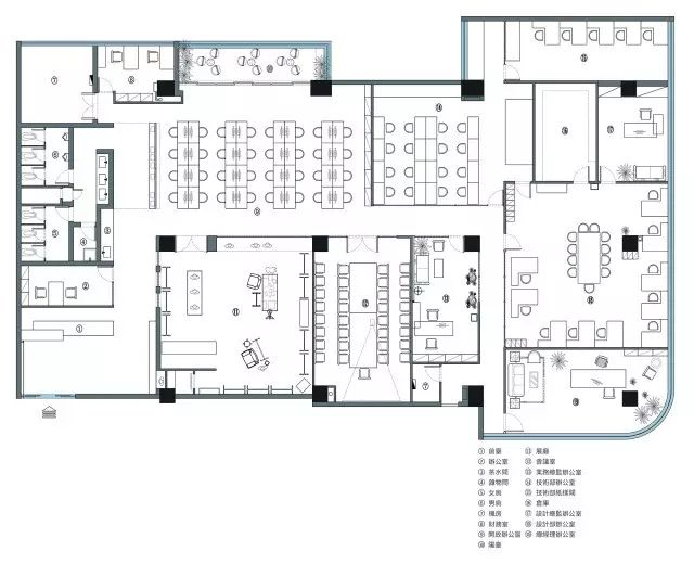
    在空间规划上,兼具休闲娱乐、协作交流和专注私密等多维度的休闲办公需求。帮助人们更好地胜任本职工作,同时放松身心,适当调整过劳造成的不良身体状态。

  • 小海 / 设计师

    2022年09月05日 21:58:47

    + 关注
    #办公智造#

    从早期功能刻板单一的格子间,到现在个人工位空间与开放公共空间的双管齐下,时代的进步也让工作模式发生着显著进化。越来越多的企业高管认识到:组织的创新与发展离不开员工之间所建立的高效协作模式。如今,办公空间不仅作为企业文化输出的重要载体,也承担着鼓励人员创新和引进人才的作用。        

  • 7Roue. / 设计师

    2022年09月05日 20:13:05

    + 关注
    #办公智造#

    方案远离传统的网格式布局,将员工的个性化需求放在首位,形式灵活可变,空间框架明朗,但界限模糊,可跟随需求变换用途。        

  • 戴宁 / 设计师

    2022年09月05日 19:35:53

    + 关注
    #办公智造#

     升驰五金效果图        

  • Siri / 设计师

    2022年09月05日 17:22:29

    + 关注
    #办公智造#

    普适导航办公室        

  • 俊泽 / 设计师

    2022年09月05日 15:53:40

    + 关注
    #办公智造#

    入口的设计没有多余的元素,利用形体的自身逻辑和材质光影的质感塑造时尚现代的感觉。我们把光带作为一种几何设计语言整合到空间中,塑造另一种质感。        

  • 俊泽 / 设计师

    2022年09月05日 15:51:36

    + 关注
    #办公智造#

     办公室中间的主通道没有刻意设计,而是在设计功能立面的时候把通道的效果直接考虑进去。通道的转角处定制了一幅水墨写意山水使狭长的通道有了聚焦点。        

  • 俊泽 / 设计师

    2022年09月05日 15:47:09

    + 关注
    #办公智造#

     销售总监的办公室基装部分处理非常简洁,主要通过家具的陈设品凸显其空间格调。整板的原木办公台和新中式的家具相形益彰,黑铁板定制的书柜则极为现代,空间整体塑造出一种东方现代禅意的气质。

发布话题

公开