当前位置:首页 > 户型图分析

#办公智造#

阅读 943588 | 粉丝 943588

  • 无忌 / 设计师

    2022年08月23日 20:59:41

    + 关注
    #办公智造#

    效果图体现        

  • 无忌 / 设计师

    2022年08月23日 20:57:16

    + 关注
    #办公智造#

    董事长办公室效果图        

  • Camille yu / 设计师

    2022年08月23日 20:29:15

    + 关注
    #办公智造#

    简洁、轻松、自然是空间的关键词,一切都以轻松舒适为导向,让空间里的每一个元素都和人产生联系。        

  • 易壮壮 / 设计师

    2022年08月23日 18:03:13

    + 关注
    #办公智造#

    易筑案例 | 舒适 · 艺术        

    毛均峰

    毛均峰:必须赞
  • 陈澄 / 设计师

    2022年08月23日 17:13:51

    + 关注
    #办公智造#

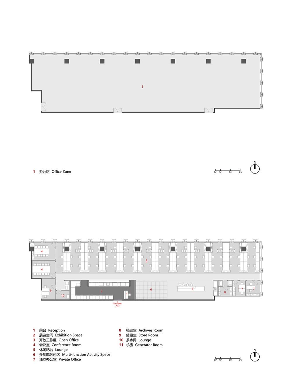
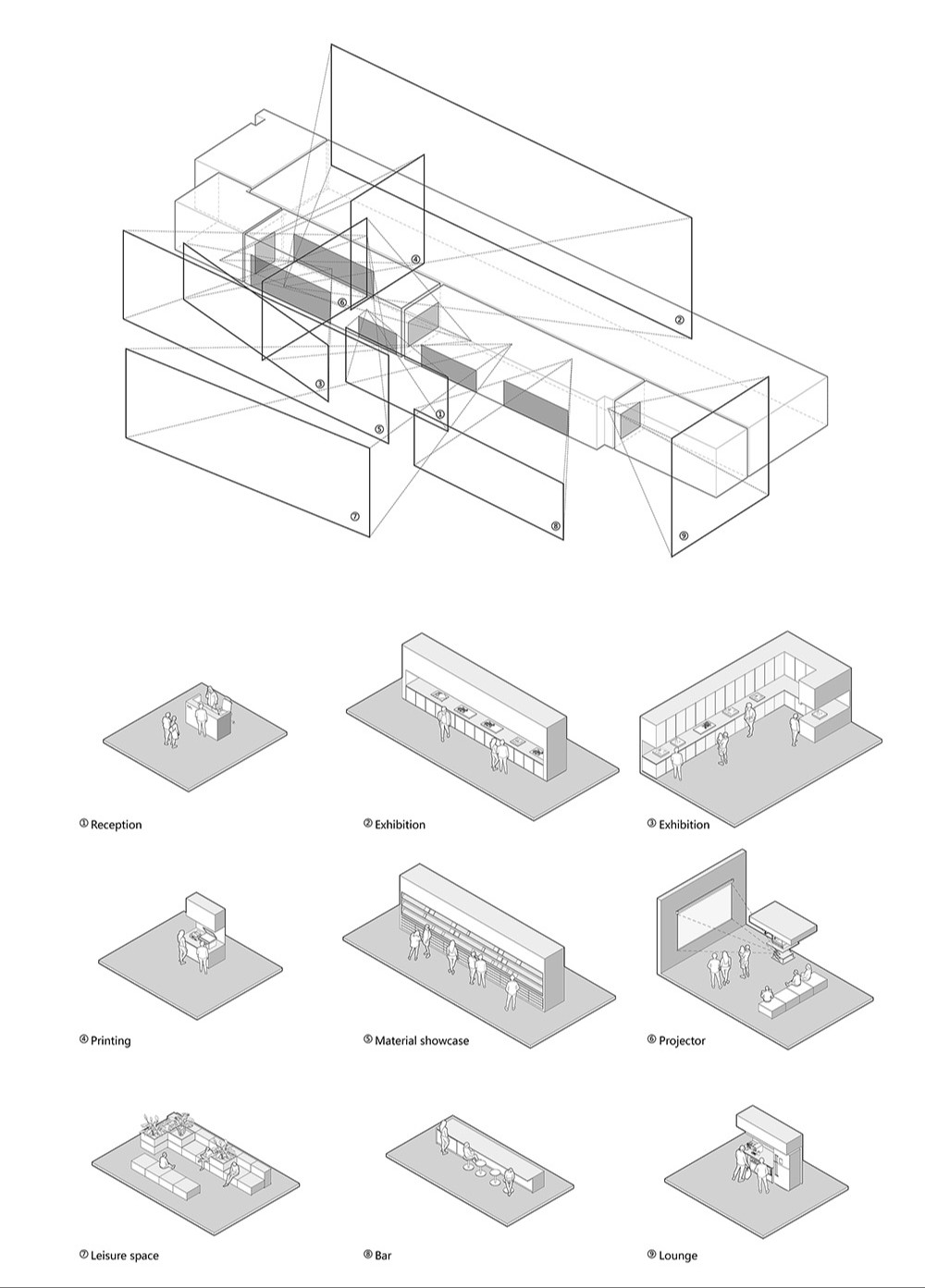
    写字楼门厅至电梯厅大面积使用白色石材,明亮大方。而设计通过黑色盒子限定入口,既暗示到访者已进入公司,也是保护办公私密性的玄关。黑色盒子是一个小型展陈空间,可收纳与展示重要项目模型,通过光环境的对比与控制,黑色盒子里展示的模型犹如一件件艺术品,使访客能够在第一时间感知团队的设计追求和精良品质。        

    毛均峰

  • 陈澄 / 设计师

    2022年08月23日 17:10:38

    + 关注
    #办公智造#

    穿过黑色盒子,人们即可到达开放办公空间,通过明暗与尺度对比,开放办公区域在视觉上更宽敞与明亮。写字楼原始设计与建造工艺精美,设计将连续的L型幕墙立面全部给开放办公,同时将服务空间压缩为内侧长条,优化开放办公区域的平面比例,使每个工位都沐浴在自然光线中。        

    毛均峰

  • 刘静 / 设计师

    2022年08月23日 15:21:18

    + 关注
    #办公智造#

    点石无界(1)        

  • 刘静 / 设计师

    2022年08月23日 15:19:24

    + 关注
    #办公智造#

    点石无界(2)        

发布话题

公开