当前位置:首页 > 户型图分析

#办公智造#

阅读 943049 | 粉丝 943049

  • Siri / 设计师

    2022年08月23日 11:43:22

    + 关注
    #办公智造#

    国外办公室赏析        

  • 巴顿 / 设计师

    2022年08月23日 08:25:28

    + 关注
    #办公智造#

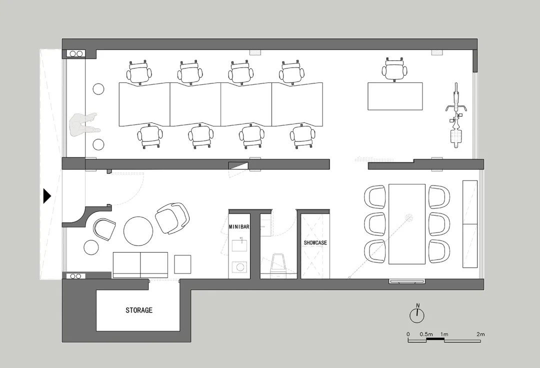
    希望营造一个像家一样的氛围,又是集接待、会客、展示、办公于一体的复合空间。通过改变原有的入口和厨、卫空间的位置划分出了三个区域,空间及流线清晰,比例为2:1:1。设计手法力求简单,从实用功能出发,通过材料切割划分,创造出序列空间多样的尺度及比例,同时又能清晰呈现出空间与细节的对比关系。        

  • 敏颜 / 设计师

    2022年08月23日 07:06:26

    + 关注
    #办公智造#

    使用了中性材料调色板,包括橡木贴面木制品,白橡木地板,灰色石头和水磨石以及纹理地毯。精心分层的材料和纹理为空间带来了丰富性。吸音天花板、长毛绒地毯衬垫和材料细节营造出行政风格。为了带来流行的色彩,家具,艺术品和配件经过精心挑选,以照亮空间。        

  • 敏颜 / 设计师

    2022年08月23日 06:58:37

    + 关注
    #办公智造#

    设计理念从以木材、砖料和外露式钢结构为主的建筑材料中便可见一斑,并将当地的历史氛围融入建筑之中。

    除了坐/站式办公桌、可重新配置的家具解决方案等诸多符合人体工学的功能以外,还可通过特色楼梯间将团队垂直连接起来,便于他们使用设施与协作空间,同时发挥活力设计的健康优势。经综合考量,空间设计中纳入了高比例的无固定工位,便于个人和团队自行选择工作地点。这种办公场所策略将每一层的团队以“社区”形式聚集起来,促进团队协作。此外,特色楼梯间还可将团队垂直连接起来,增加偶然碰面和激发创意的机会,同时发挥活力设计的健康优势。

    大楼内设有联合办公空间以及展览、活动和临时空间,为创意人士提供灵活多变的工作环境。整个空间还可重新构建,既可用作单一用途,也可同时举办多项活动,功能多样,满足各种需求。这里不仅可供大家展示作品、开展协作、主持活动、庆祝重要时刻,更重要的是,能让大家相聚一堂,共享美好时光。        

  • 毛均峰 / 设计师

    2022年08月22日 22:27:15

    + 关注
    #办公智造# 办公室设计

  • 无忌 / 设计师

    2022年08月22日 21:09:18

    + 关注
    #办公智造#

    办公室空间铝方通的使用        

  • Camille yu / 设计师

    2022年08月22日 18:41:49

    + 关注
    #办公智造#

    有格调办公空间        

  • Diana / 设计师

    2022年08月22日 16:28:54

    + 关注
    #办公智造#

    凤凰网办公室设计赏析        

发布话题

公开